Piso en venta en Madrid (Salamanca)

venta: 3.600.000 €
antes: 3.650.000 €
Ref.3994 3 Habitaciones 3 Baños 183 m2 3 Altura
Descripción

Home Select vende vivienda situada en el prestigioso Barrio de Salamanca - Recoletos, concretamente en la calle Hermosilla, uno de los enclaves más codiciados y representativos de la zona.

Ubicada en una tercera planta exterior de un elegante edificio clásico del año 1900, la finca conserva el carácter señorial propio de la época y dispone de servicio de conserjería.

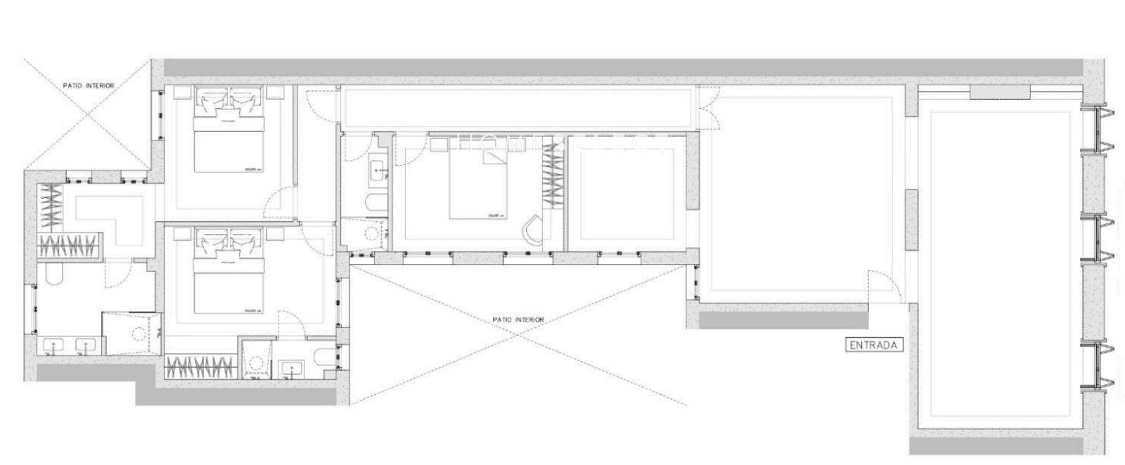
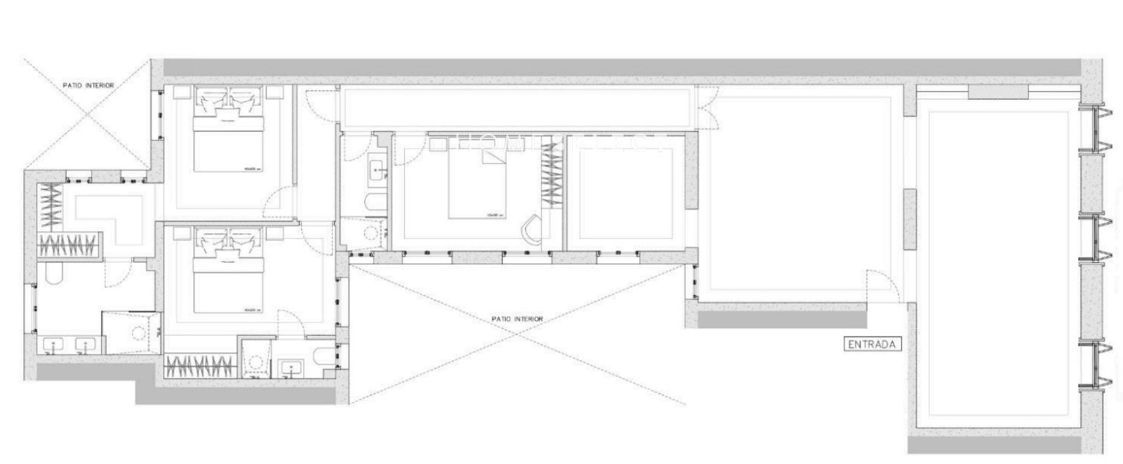
La propiedad cuenta con 183 m² construidos, perfectamente distribuidos para ofrecer amplitud, funcionalidad y confort. Sus tres balcones a la calle, junto con la orientación sur, garantizan una magnífica entrada de luz natural durante todo el día, aportando una luminosidad excepcional a la vivienda.

La zona social se organiza en torno a un espacioso y sofisticado salón y comedor, claramente diferenciados, creando un ambiente ideal tanto para la vida diaria como para recibir invitados. La cocina independiente, totalmente equipada, combina diseño y funcionalidad, manteniendo la privacidad de los espacios.

La zona de noche está compuesta por tres dormitorios dobles, todos ellos con baño en suite, ofreciendo comodidad y total independencia. El dormitorio principal destaca especialmente por su generoso tamaño y su amplio vestidor.

La vivienda ha sido reformada íntegramente con materiales de alta calidad y se entrega amueblada, lista para entrar a vivir.

Una propiedad que reúne ubicación prime, arquitectura clásica y diseño contemporáneo en el corazón del Madrid más exclusivo.

Características
Precio Venta 3.600.000 €
Precio/m² 19.672
Año de construcción 1900
Construidos 183 m2
Dormitorios 3
Baños 3
Amueblado
Cocina Amueblada
Altura/Planta 3
Ascensor
Aire acondicionado
Calificación Energética En trámite
Luz
Conserje
Escalas de eficiencia



Contacto
 Sí, he leído y/o acepto las Condiciones de uso y la Política de privacidad
Inmuebles similares
Madrid, Recoletos

Home Select vende piso en una finca clásica de 193m2 en el Barrio de Salamanca.

3.280.000 €
Ref. 3941 4 Dormitorios 3 Baños 193 m2 Superficie
Madrid, Recoletos

Home Select vende espectacular piso en el Barrio de Recoletos, situado en una cuarta planta exterior.

4.200.000 €
Ref. 3921 3 Dormitorios 4 Baños 234 m2 Superficie
Madrid, Recoletos
Piso en venta en Madrid, con 200 m2, 3 habitaciones y 4 baños, Garaje y Ascensor.
2.990.000 €
Ref. 1189 3 Dormitorios 4 Baños 200 m2 Superficie
Home Select
C/ Hermosilla 21, Planta Baja 28001 Madrid, España
Premier Global Brokers
Latitude One
175 SW 7th St, unit 2308-2309
Miami, Florida 33130, EE.UU
Síguenos en: