Piso en venta en Madrid (Centro)

venta: 1.380.000 €
Ref.1017 2 Habitaciones 2 Baños 110 m2 2 Altura
Descripción

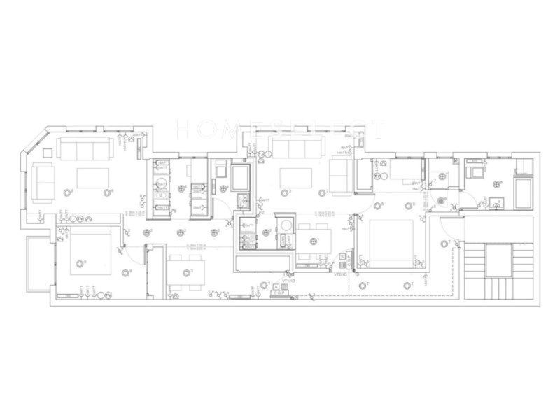
Home Select vende piso en pleno corazón de Chueca-Justicia, en la emblemática calle San Lorenzo, se ubica esta singular propiedad en un edificio de 1926. Situada en una segunda planta exterior, cuenta con 110 m² construidos y nada menos que 11 balcones a la calle, lo que garantiza una luminosidad extraordinaria y una conexión directa con el vibrante entorno del barrio.

Magnífica vivienda exterior en segunda planta, ubicada en un edificio clásico de 1926, que combina el encanto de la arquitectura tradicional con una reforma integral a estrenar.

La vivienda cuenta con una superficie de 110 m² y destaca por ser completamente exterior, con nada menos que 11 ventanas a la calle, lo que garantiza una luminosidad excepcional durante todo el día y una agradable sensación de amplitud en todas las estancias.

El espacio principal se organiza en un amplio salón-comedor, ideal tanto para el día a día como para recibir invitados, que se complementa con un aseo de cortesía. La cocina es semi independiente, perfectamente delimitada pero visualmente conectada, e incorpora una práctica zona de comedor de diario.

La zona de descanso se compone de dos dormitorios, ambos en suite, con sus respectivos baños completos, ofreciendo privacidad y confort.

Una vivienda única por su luz, su distribución equilibrada y su ubicación en una finca con carácter, ideal para quienes buscan un hogar elegante y listo para estrenar.

Características
Precio Venta 1.380.000 €
Precio/m² 12.545
Construidos 110 m2
Dormitorios 2
Baños 2
Altura/Planta 2
Ascensor
Calificación Energética En trámite
Escalas de eficiencia



Contacto
 Sí, he leído y/o acepto las Condiciones de uso y la Política de privacidad
Inmuebles similares
Madrid, Chueca-Justicia
Piso en venta en Madrid, con 118 m2, 2 habitaciones y 2 baños, Ascensor y Aire acondicionado.
1.575.000 €
Ref. 3808 2 Dormitorios 2 Baños 118 m2 Superficie
Madrid, Chueca-Justicia
Piso en venta en Madrid, con 128 m2 y 2 habitaciones y 2 baños.
1.650.000 €
Ref. 3614 2 Dormitorios 2 Baños 128 m2 Superficie
Home Select
C/ Hermosilla 21, Planta Baja 28001 Madrid, España
Premier Global Brokers
Latitude One
175 SW 7th St, unit 2308-2309
Miami, Florida 33130, EE.UU
Síguenos en: