Ático en venta en Madrid (Retiro)
venta: 5.500.000 €
Ref.1139 3 Habitaciones 27 m2 Altura
Descripción

Home Select vende vivienda en venta en el Barrio de Retiro - Ibiza, ubicada en la icónica Torre de Valencia. Se trata de un ático situado en la planta 27, la última del edificio, con una superficie total de 283 m² construidos, que incluyen 16 m² de terraza. La propiedad se entregará reformada y amueblada, con una previsión de finalización de obra para mediados de octubre de 2025.

La vivienda cuenta con una terraza que ofrece vistas panorámicas de todo Madrid.

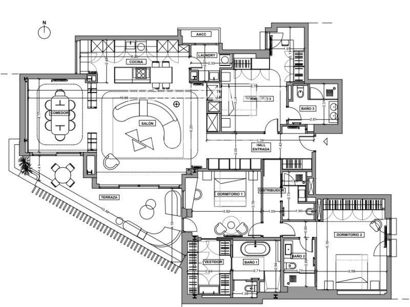
Distribución:

La zona de día se articula a partir de un hall de entrada que conduce en línea recta a un amplio salón, con salida directa a la terraza, la cual está planteada para albergar dos ambientes diferenciados. El salón se integra con una cocina abierta, equipada con una isla central que funciona como superficie de trabajo y también como comedor de diario para cuatro personas, con mucho espacio de almacenamiento.

El comedor principal, independiente, está diseñado para 8 comensales y también dispone de salida a la terraza.

En la zona de noche, la vivienda dispone de tres dormitorios, todos con baño en suite, y un cuarto baño completo adicional, que también funciona como baño de cortesía. Cuenta además con una zona de lavandería independiente.

Incluye una plaza de garaje en el edificio y trastero.

#ref:VÀTI_4451

Características
Precio Venta 5.500.000 €
Dormitorios 3
Altura/Planta 27
Ascensor
Calificación Energética En trámite
Escalas de eficiencia



Contacto
 Sí, he leído y/o acepto las Condiciones de uso y la Política de privacidad
Home Select
C/ Hermosilla 21, Planta Baja 28001 – Madrid
Premier Global Brokers
Latitude One
175 SW 7th St, unit 2308-2309
Miami, Florida 33130
Síguenos en: