Home Select vende piso en finca clásica de la calle General Pardiñas, en Barrio de Salamanca. Se trata de una sexta planta -la última-, con vistas despejadas, y orientación oeste (sol de tarde).
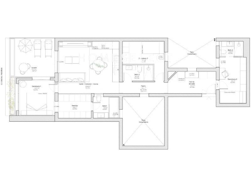
Magnífica oportunidad en una de las zonas más codiciadas de Madrid. Vivienda de 139m² construidos, incluyendo una terraza de 17m². El ático, situado en una finca clásica con portero y fácil accesibilidad, ofrece una distribución privilegiada: el ascensor llega directamente a la última planta, donde solo hay dos vecinos por planta, asegurando privacidad y exclusividad. Sus amplios ventanales y orientación permiten una luminosidad excepcional, con vistas despejadas desde el salón y una terraza privada perfecta para disfrutar de los atardeceres madrileños.
El piso se entrega sin reformar. (reforma valorada en 220.000€ + IVA).
-Amplia zona de salón-comedor con acceso a la terraza.
-Cocina equipada con acabados de alta calidad
-3 dormitorios
-3 baños completos
La vivienda se entrega sin reformar, aunque el comprador puede acogerse al proyecto de reforma existente, elaborado por el propietario y valorado en 225,073.81€ + IVA, lo que permite ahorrar tiempo y contar con una propuesta de diseño ya desarrollada.
#ref:VPIS_4414