Piso en venta en Madrid (Centro)

venta: 4.600.000 €
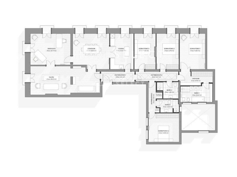
Ref.1211 4 Habitaciones 3 Baños 219 m2 3 Altura
Descripción

Homeselect presenta esta propiedad en una finca clásica de 1910 en la calle Barquillo del barrio Justicia. Esta espectacular vivienda ubicada en una tercera planta totalmente exterior con 9 balcones a la calle. Destaca por lo alto de sus techos; esta finca conserva totalmente su aspecto señorial de haber sido un palacete de la epoca.

El piso actualmente se esta reformando con altas calidades y estari libre para Octubre del 2025.

La zona de Justicia a crecido exponencialmente desde hace pocos años y en la actualidad representa una de las zonas mas codiciad para vivir en la ciudad. Destaca por su variedad de tiendas de alto nivel, grandes restaurantes, teatros y zonas de ocio.

En homeselect te invitamos a visitarla.

#ref:VPIS_4360

Características
Precio Venta 4.600.000 €
Precio/m² 21.005
Construidos 219 m2
Útiles 207 m2
Dormitorios 4
Baños 3
Altura/Planta 3
Ascensor
Calificación Energética En trámite
Escalas de eficiencia



Contacto
 Sí, he leído y/o acepto las Condiciones de uso y la Política de privacidad
Home Select
C/ Hermosilla 21, Planta Baja 28001 Madrid, España
Premier Global Brokers
Latitude One
175 SW 7th St, unit 2308-2309
Miami, Florida 33130, EE.UU
Síguenos en: