Piso en venta en Madrid (Chamartín)
venta: 2.600.000 €
Ref.1220 3 Habitaciones 2 Baños Garaje
Descripción

Home Select vende espectacular piso en un proyecto de obra nueva de la promotora Uniq, en el exclusivo Paseo de La Habana. La urbanización es un oasis en el centro de Madrid. Además de un precioso y tranquilo jardín de 4.500 m2 que conserva sus árboles centenarios, los residentes de este proyecto residencial tienen a su disposición una piscina infinity de más de 20 metros y gimnasio. Todo el recinto dispone de servicios de vigilancia 24 horas y de conserjería, dotados con sistemas de seguridad de última generación. Por último, junto con la vivienda se presenta la posibilidad de adquirir tres plazas de garaje por 60.000€ cada una.

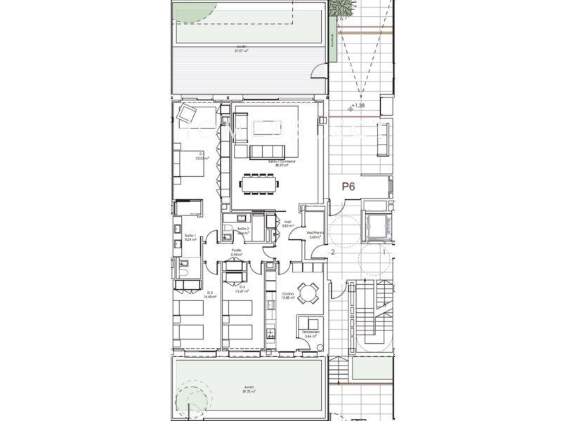
Se trata de una planta baja con dos jardines de casi 90m2 en total y con posibilidad de unión con el otro bajo contiguo. La vivienda se distribuye de la siguiente manera: a través del hall accedemos al salón - comedor que cuenta con un acceso directo a uno de los jardines. La cocina se encuentra independiente de la estancia con una zona destinada al tendedero. La zona de noche se compone de tres dormitorios, el principal con su baño en suite y los restantes con baño compartido que puede servir también como aseo de cortesía. Todos los dormitorios tienen muy buen tamaño y cuentan con acceso al jardín.

Si se desea adquirir con muebles, el precio sería de 60.000€ más.

Toda la vivienda cuenta con las mejores calidades como calefacción por suelo radiante, aerotermia, aire acondicionado por conductos, tarima de roble natural o porcelánico de gran formato,... propia de una obra nueva. El edificio cuenta con certificación energética AA y certificado BREEAM.

Oportunidad de adquirir una planta baja excepcional en una zona muy consolidada de Madrid, ideal para disfrutarlo o ponerlo en rentabilidad en alquiler de temporada.

#ref:VPLA_4351

Características
Precio Venta 2.600.000 €
Dormitorios 3
Baños 2
Garajes 1
Ascensor
Garaje
Calificación Energética En trámite
Escalas de eficiencia



Contacto
 Sí, he leído y/o acepto las Condiciones de uso y la Política de privacidad
Inmuebles similares
Madrid, Nueva España
Piso en venta en Madrid, con 218 m2, 3 habitaciones y 2 baños, Garaje y Ascensor.
2.600.000 €
Ref. 1219 3 Dormitorios 2 Baños 218 m2 Superficie
Home Select
C/ Hermosilla 21, Planta Baja 28001 – Madrid
Premier Global Brokers
Latitude One
175 SW 7th St, unit 2308-2309
Miami, Florida 33130
Síguenos en: