Piso en venta en Madrid (Salamanca)
venta: 1.470.000 €
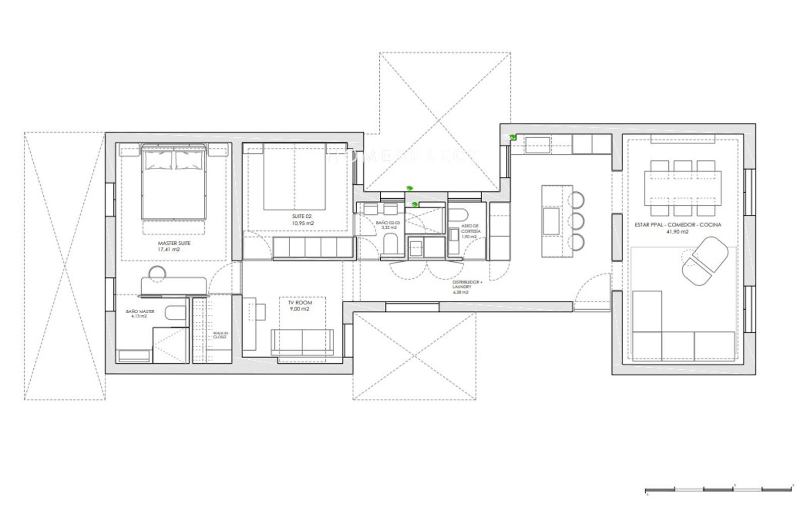
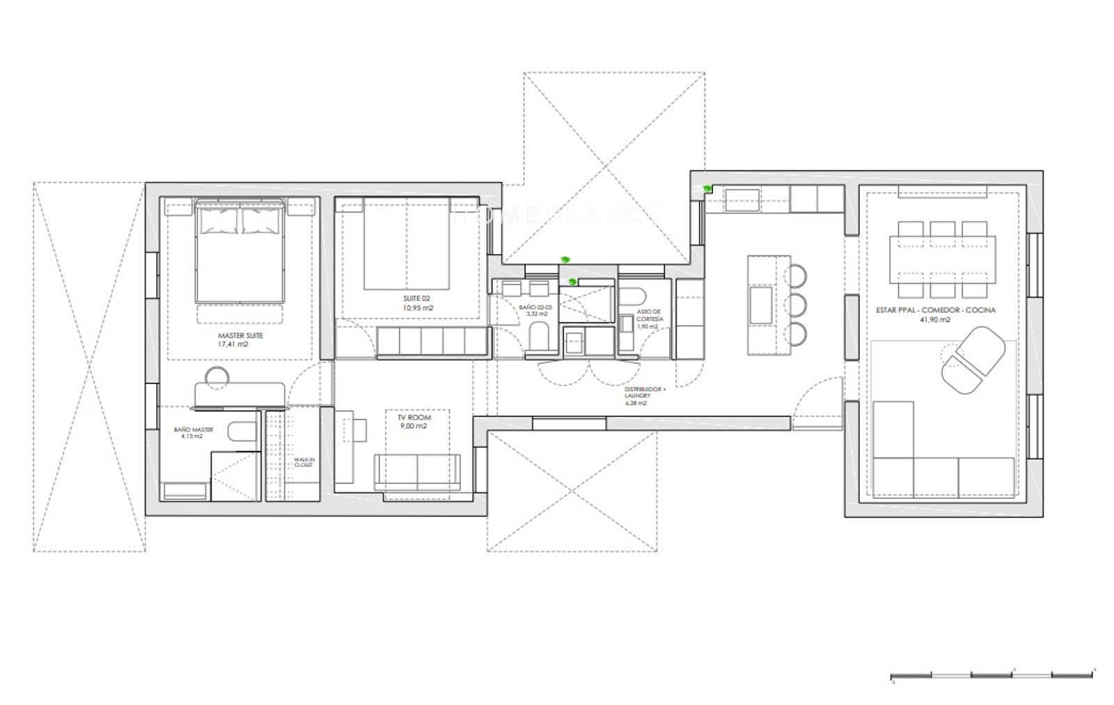
Ref.3636 2 Habitaciones 3 Baños 125 m2 6 m2 Altura
Descripción

Home Select presenta esta vivienda situada en la sexta planta exterior de un edificio en la calle Padilla, en el corazón del Barrio de Salamanca – Lista, una zona residencial muy cotizada, bien comunicada y rodeada de servicios, boutiques y restaurantes.


Con una superficie de 125 m², la propiedad destaca por su luz natural y su orientación sur, además de contar con dos balcones que aportan amplitud y calidez a los espacios.


La reforma, recién terminada, cuenta con la siguiente distribución: un elegante salón-comedor con cocina abierta, dos dormitorios en suite, un aseo de cortesía, un espacio versátil de family room o tercer dormitorio, y una zona de lavandería independiente.


La vivienda se entrega reformada a estrenar, con materiales de alta calidad y un diseño cuidado en cada detalle.

El precio es de 1.470.000 €. Los muebles no están incluidos, aunque existe la posibilidad de adquirirlos mediante presupuesto adicional.


Una propiedad luminosa, elegante y lista para entrar a vivir, ideal para quienes buscan confort y estilo en una de las mejores zonas de Madrid.

Características
Precio Venta 1.470.000 €
Año de construcción 1940
Construidos 125 m2
Precio/m² 11.760
Dormitorios 2
Baños 3
Cocina Amueblada
Altura/Planta 6
Estado Reformado
Ascensor
Aire acondicionado
Calificación Energética En trámite
Escalas de eficiencia



Contacto
 Sí, he leído y/o acepto las Condiciones de uso y la Política de privacidad
María Escalada
Inmuebles similares
Madrid, Lista
Piso en venta en Madrid, con 146 m2, 3 habitaciones y 3 baños y Ascensor.
1.519.000 €
Ref. 1177 3 Dormitorios 3 Baños 146 m2 Superficie
Madrid, Lista
Piso en venta en Madrid, con 135 m2, 3 habitaciones y 3 baños y Ascensor.
1.600.000 €
Ref. 1173 3 Dormitorios 3 Baños 135 m2 Superficie
Madrid, Lista
Piso en venta en Madrid, con 134 m2, 3 habitaciones y 3 baños y Ascensor.
1.525.000 €
Ref. 1024 3 Dormitorios 3 Baños 134 m2 Superficie
Home Select
C/ Hermosilla 21, Planta Baja 28001 – Madrid
Premier Global Brokers
Latitude One
175 SW 7th St, unit 2308-2309
Miami, Florida 33130
Síguenos en: