Piso en venta en Madrid (Chamberí)

venta: 1.850.000 €
Ref.3930 3 Habitaciones 4 Baños 167 m2 3 Altura
Descripción

Home Select vende vivienda ubicada en Chamberí - Nuevos Ministerios, próxima a la Plaza de San Juan de la Cruz y el Paseo de la Castellana. Cercana a universidades, hospitales y zonas de oficinas. El entorno residencial es seguro, tranquilo y cuenta con una amplia oferta de servicios, comercios, restaurantes y espacios culturales. es una vivienda exterior de 167 m² en una finca clásica de carácter señorial. La luz entra a través de sus ocho balcones, realza los techos altos y la amplitud de los espacios, aportando confort y calma en un entorno urbano privilegiado.

La finca clásica, de gran elegancia, destaca por su portal señorial, vidrieras en las escaleras y un esquinazo en chaflán que aporta luminosidad y vistas privilegiadas. Con techos altos, ocho huecos a la calle entre balcones y miradores con balaustradas de piedra, y ascensor clásico de madera, la propiedad ofrece una atmósfera única y sofisticada. Solo dos vecinos por planta aseguran privacidad y exclusividad.

La azotea comunitaria, habilitada con tumbonas y plantas, permite disfrutar de momentos de relax en pleno corazón de Madrid. Su excelente conectividad mediante metro y autobuses, junto a la revalorización constante de la zona, garantiza una inversión segura y rentable, ideal tanto para familias como para profesionales que buscan calidad de vida y potencial de crecimiento patrimonial.

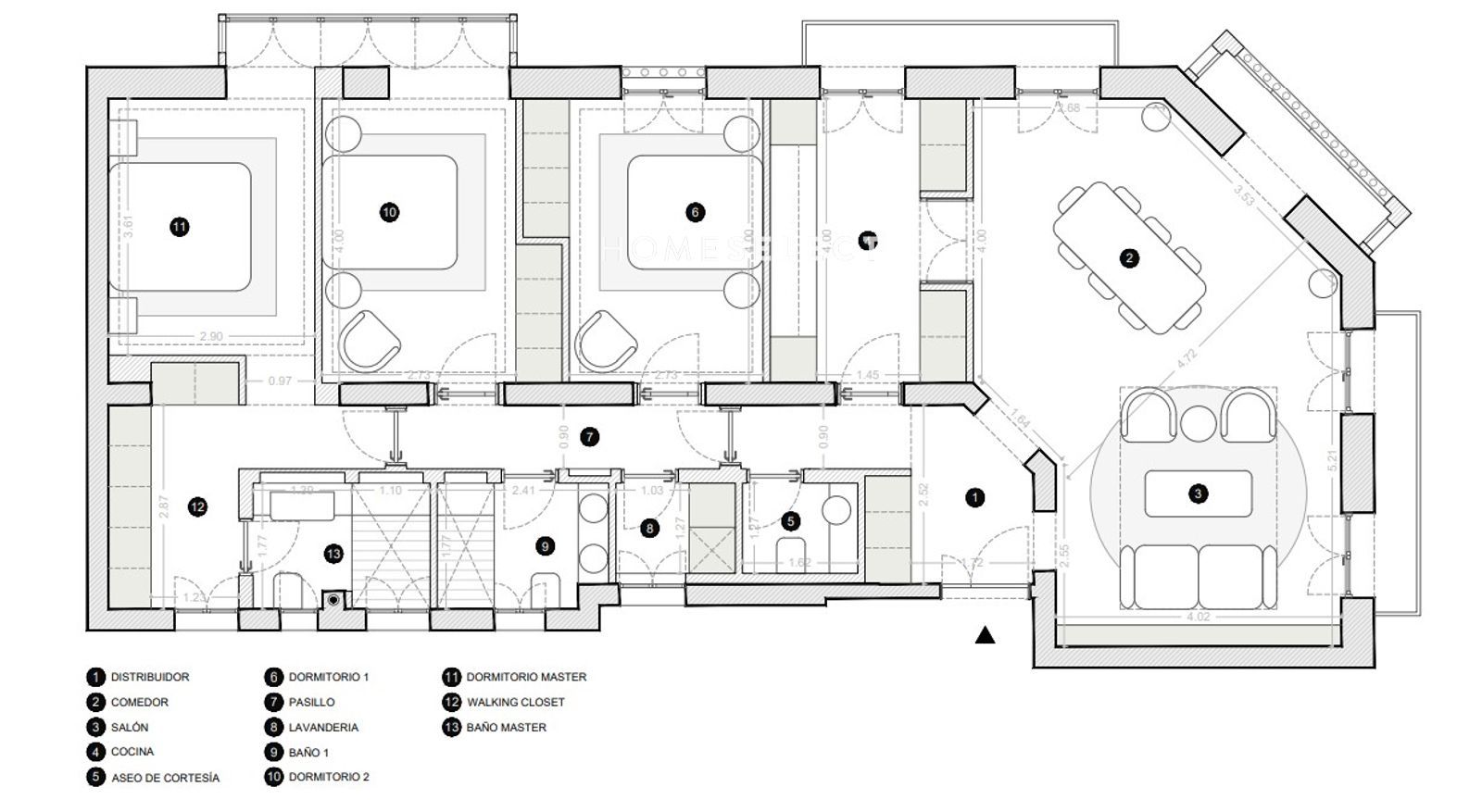
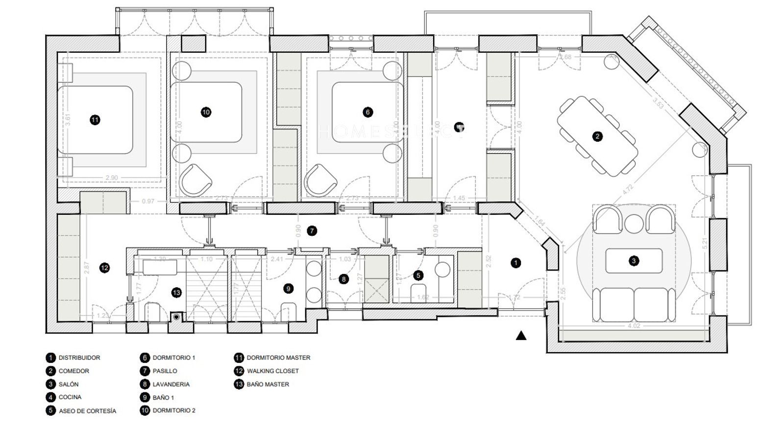
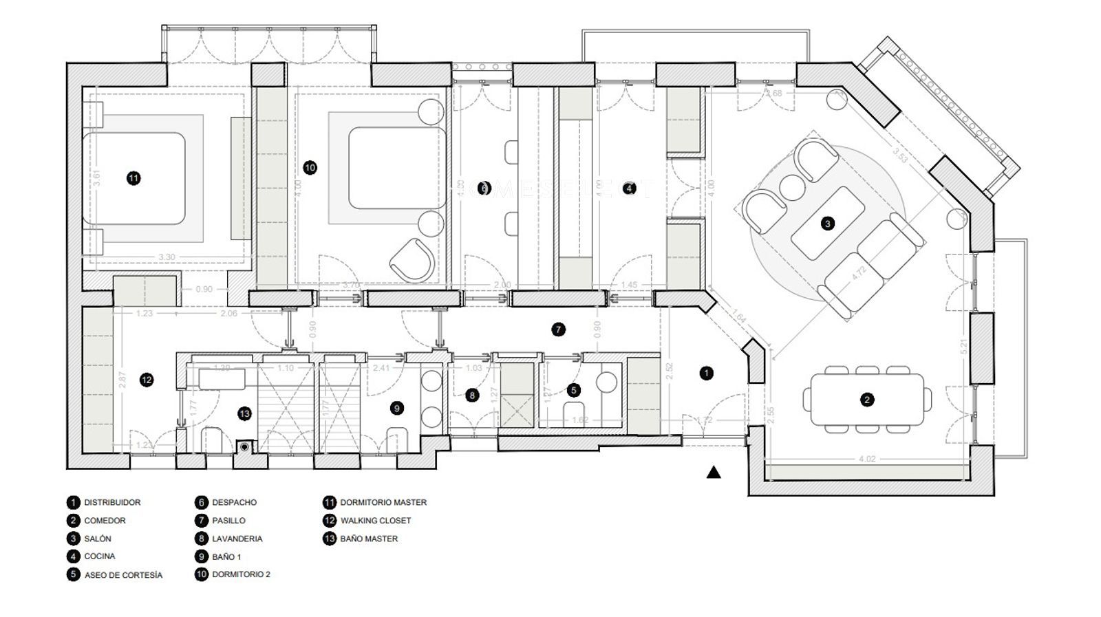
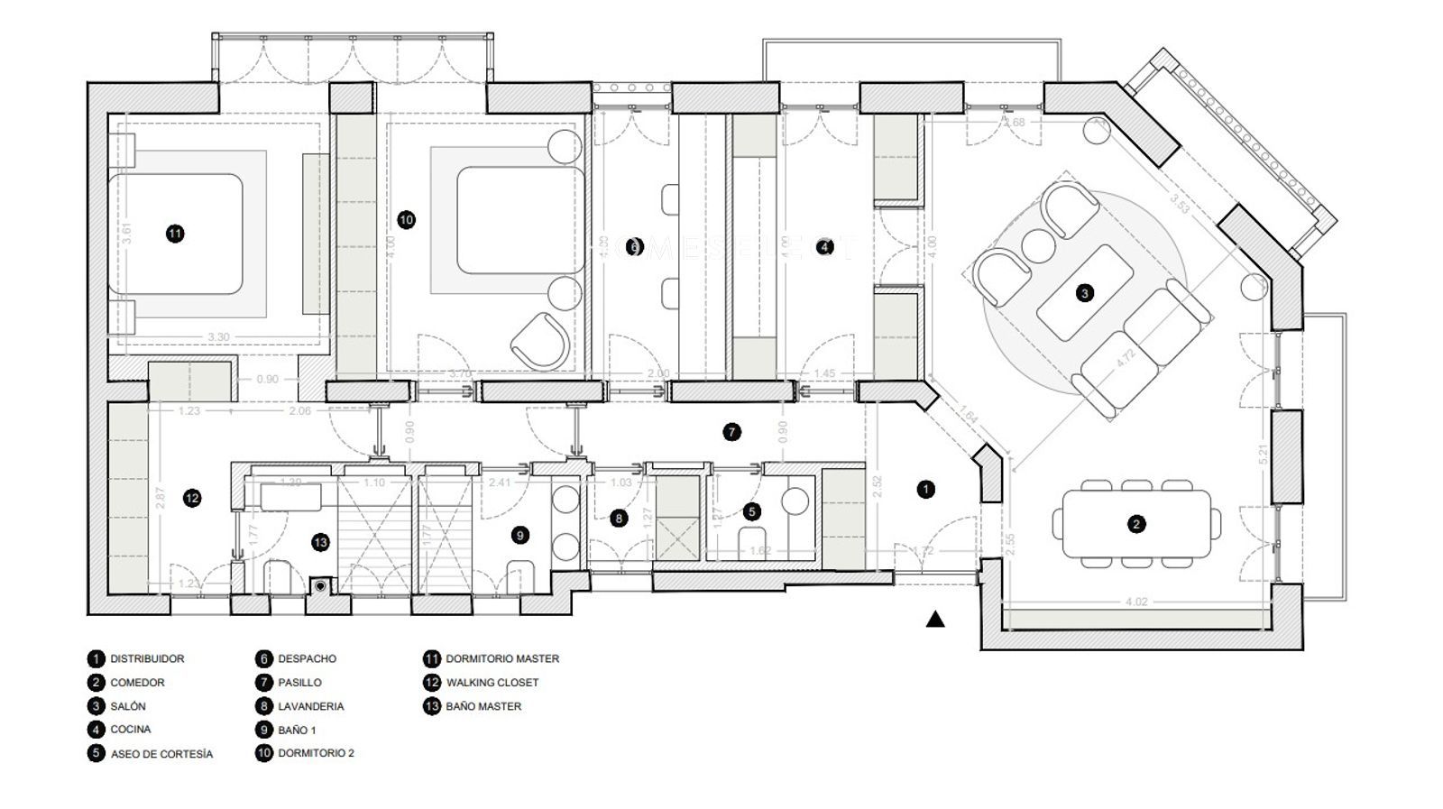
La propiedad cuenta con dos proyectos de reforma:

-Reforma con 2 dormitorios y 3 baños: Distribución optimizada con zona de día amplia (salón + comedor) y cocina independiente con lavandería, incorporando aseo de cortesía y un despacho. La zona de noche se compone de 2 dormitorios, con suite principal que integra walking closet y baño master, además de baño 1 para el resto de la vivienda. Circulaciones claras y programa completo, priorizando funcionalidad y confort.

-Reforma con 3 dormitorios y 3 baños: Propuesta de reforma integral con una distribución racional y muy eficiente, priorizando amplitud, luz natural y almacenamiento. La vivienda se organiza en una zona de día generosa, con salón y comedor diferenciados y cocina integrada, reforzada por un frente de carpintería a medida que aporta continuidad, orden y calidez. El programa incluye 3 dormitorios (dormitorio principal con walking closet y baño en suite), 2 baños completos, 1 aseo de cortesía, y lavandería independiente. La estética se apoya en una paleta neutra y materiales atemporales (madera, piedra y texturas naturales), con iluminación ambiental perimetral y detalles de diseño sobrios para una imagen elegante y serena.

Características
Precio Venta 1.850.000 €
Año de construcción 1924
Construidos 167 m2
Útiles 152 m2
Precio/m² 11.078
Dormitorios 3
Baños 4
Calefacción Central
Trastero
Terraza
Altura/Planta 3
Estado Buen estado
Ascensor
Calificación Energética En trámite
Escalas de eficiencia



Contacto
 Sí, he leído y/o acepto las Condiciones de uso y la Política de privacidad
Inmuebles similares
Madrid, Nuevos Ministerios-Ríos Rosas
Piso en venta en Madrid, con 233 m2, 5 habitaciones y 5 baños, 2 plazas de Garaje y Ascensor.
2.125.000 €
Ref. 1689 5 Dormitorios 5 Baños 233 m2 Superficie
Madrid, Nuevos Ministerios-Ríos Rosas
Piso en venta en Madrid, con 216 m2, 5 habitaciones y 4 baños y Ascensor.
1.650.000 €
Ref. 1262 5 Dormitorios 4 Baños 216 m2 Superficie
Home Select
C/ Hermosilla 21, Planta Baja 28001 Madrid, España
Premier Global Brokers
Latitude One
175 SW 7th St, unit 2308-2309
Miami, Florida 33130, EE.UU
Síguenos en: