Home Select vende vivienda ubicada en una de las zonas más agradables y demandadas de Moncloa–Argüelles, esta vivienda disfruta de un entorno privilegiado, a un paso del Parque del Oeste y del Templo de Debod, rodeada de amplias zonas verdes y algunos de los enclaves más emblemáticos de la ciudad. La vida comercial y social se concentra en la cercana calle Princesa, con una amplia oferta de tiendas, cafeterías y espacios de ocio, y a pocos minutos a pie se encuentran también el Palacio de la Almudena y el centro histórico. La zona cuenta, además, con excelentes conexiones tanto en transporte público como con la M-30, facilitando las salidas de Madrid.
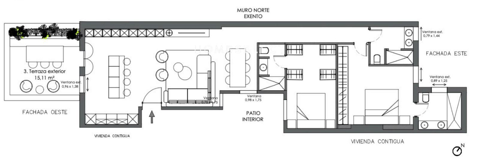
Se trata de un ático en sexta planta, con una superficie construida de 145 m² según catastro, que destaca por su potencial y luminosidad. La vivienda dispone de una terraza de aproximadamente 15 m², un espacio ideal para disfrutar del exterior con vistas abiertas y crear una agradable zona de descanso.
Actualmente, la propiedad requiere reforma, lo que ofrece una magnífica oportunidad para adaptarla a distintos estilos y necesidades. Se presentan dos propuestas de reforma, que contemplan la posibilidad de distribuir la vivienda en dos o tres dormitorios y dos baños, con una amplia zona de salón-comedor con salida directa a la terraza y una cocina abierta al salón, pensada para crear un espacio moderno, funcional y lleno de luz.
Una vivienda con enorme potencial en una ubicación excepcional, perfecta tanto como residencia habitual como inversión, en una de las áreas más emblemáticas y bien comunicadas de Madrid.