Ático en venta en Madrid (Chamberí)

venta: 2.385.000 €
Ref.3712 3 Habitaciones 4 Baños 194 m2 Terraza 6 Altura
Descripción

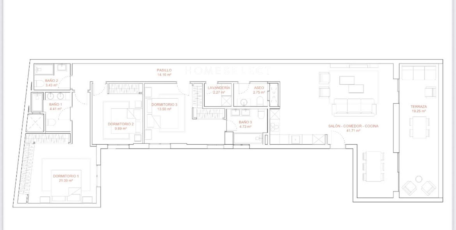
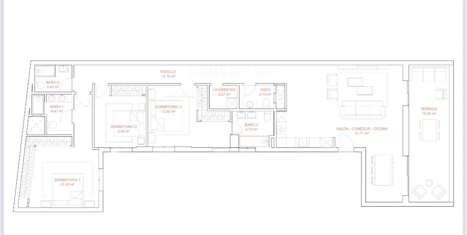
Home Select vende  ático exterior en Barrio de Chamberí - Almagro. Tiene una superficie construida de 194 m² completamente reformado y amueblado, con una espectacular terraza de 19 m² orientada al sur, que garantiza una luz natural excepcional durante todo el día.


La zona social se compone de un elegante salón, un comedor independiente y una cocina semi integrada, diseñada con materiales de alta calidad y equipada con electrodomésticos de última generación. Además, dispone de aseo de invitados y cuarto de lavandería.


La zona privada cuenta con tres amplias habitaciones con sus baños en suite, todas con una cuidada decoración y detalles de diseño que aportan confort y elegancia.


Incluye trastero.

Características
Precio Venta 2.385.000 €
Año de construcción 1964
Construidos 194 m2
Precio/m² 12.294
Dormitorios 3
Baños 4
Amueblado
Trastero
Terraza
Altura/Planta 6
Estado Reformado
Calificación Energética En trámite
Escalas de eficiencia



Contacto
 Sí, he leído y/o acepto las Condiciones de uso y la Política de privacidad
Home Select
C/ Hermosilla 21, Planta Baja 28001 Madrid, España
Premier Global Brokers
Latitude One
175 SW 7th St, unit 2308-2309
Miami, Florida 33130, EE.UU
Síguenos en: