Piso en venta en Madrid (Salamanca)

venta: 4.975.000 €
Ref.3773 4 Habitaciones 4 Baños 323 m2 4 Altura
Descripción

Presentamos una exclusiva vivienda en venta en el Barrio de Salamanca – Recoletos, situada en la cotizada calle Ayala, en un edificio clásico de 1947 en excelente estado de conservación. La propiedad se entrega reformada y amueblada, lista para entrar a vivir.

Con 323 m², la vivienda destaca por su amplitud, luminosidad y una cuidada selección de materiales y mobiliario de alta calidad.

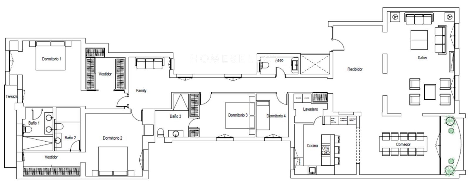
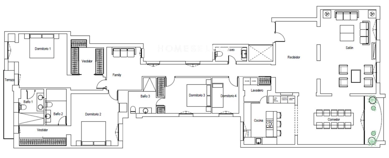
La vivienda dispone de una zona social muy amplia, compuesta por un elegante salón con dos ventanales a la calle y a su lado un comedor para diez comensales con salida a un gran balcón en forma de arco.  La cocina es independiente donde se sitúa una peníncula con tres banquetas. Viene completamente equipado con todos los electrodomésticos y tiene mucha capacidad de almacenamiento. A mano, un área de lavandería. También, aseo de cortesía para los invitados.

En la zona de noche, los cuatro dormitorios ofrecen una gran comodidad y privacidad, tres de ellos con baño en suite, equipados con acabados de alta gama. La suite principal destaca por su amplitud y capacidad de almacenamiento. Además cuenta con un family room o distribuidor de gran tamaño para los dormitorios.

Características
Precio Venta 4.975.000 €
Construidos 323 m2
Precio/m² 15.402
Dormitorios 4
Baños 4
Amueblado
Cocina Amueblada
Calefacción Central
Altura/Planta 4
Estado Reformado
Aire acondicionado
Calificación Energética En trámite
Escalas de eficiencia



Contacto
 Sí, he leído y/o acepto las Condiciones de uso y la Política de privacidad
Inmuebles similares
Madrid, Recoletos
Piso en venta en Madrid, con 302 m2, 4 habitaciones y 5 baños, Garaje y Trastero.
4.500.000 €
Ref. 3803 4 Dormitorios 5 Baños 302 m2 Superficie
Madrid, Recoletos
Piso en venta en Madrid, con 277 m2, 4 habitaciones y 4 baños y Ascensor.
4.500.000 €
Ref. 2551 4 Dormitorios 4 Baños 277 m2 Superficie
Madrid, Recoletos
Piso en venta en Madrid, con 332 m2, 4 habitaciones y 5 baños, 2 plazas de Garaje y Ascensor.
4.950.000 €
Ref. 1676 4 Dormitorios 5 Baños 332 m2 Superficie
Home Select
C/ Hermosilla 21, Planta Baja 28001 Madrid, España
Premier Global Brokers
Latitude One
175 SW 7th St, unit 2308-2309
Miami, Florida 33130, EE.UU
Síguenos en: