Piso en venta en Madrid (Centro)

venta: 1.575.000 €
Ref.3808 2 Habitaciones 2 Baños 118 m2 1 Altura
Descripción

En pleno corazón de Chueca–Justicia, a pocos pasos de la Plaza de las Salesas y del Paseo del Prado, se encuentra esta vivienda situada en la primera planta exterior de un edificio espectacular de 1910. La finca, de solo cuatro alturas y dos vecinos por planta, conserva una fachada clásica de gran belleza, con balcones y miradores de hierro forjado con evocadores acabados árabes y molduras florales originales, que aportan un encanto único y señorial.


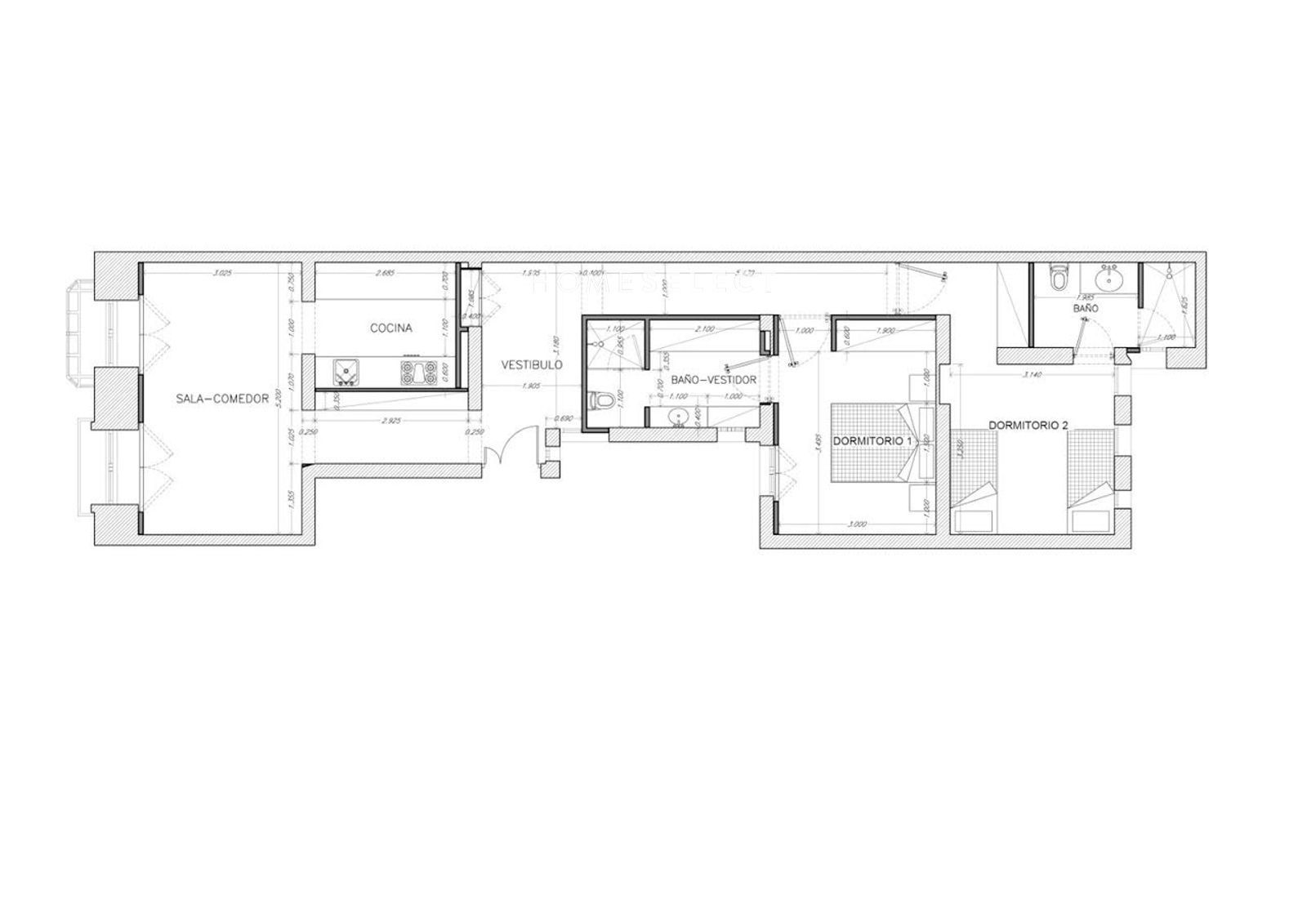
La vivienda, con 118 m² reformados y techos de 3,25 metros de altura, combina el carácter arquitectónico de principios del siglo XX con una distribución contemporánea pensada para maximizar la luz y el confort. El acceso se realiza a través de un hall que organiza la entrada y da paso a la zona social. El salón-comedor destaca por su amplitud y luminosidad, gracias a un balcón y un mirador que proyectan la estancia hacia la calle y realzan los detalles originales de la fachada.


La cocina, semiindependiente, se abre parcialmente hacia el salón y cuenta con una distribución muy funcional, situada justo en el eje que conecta la zona social con la zona privada.


La parte más íntima de la vivienda alberga dos dormitorios, ambos con sus baños en suite. El dormitorio principal incorpora además un amplio vestidor integrado en el cuarto de baño, creando un espacio muy cómodo y bien resuelto. El segundo dormitorio, también en suite, queda perfectamente delimitado y goza de buena luz y privacidad.


En conjunto, se trata de una vivienda con muchísimo carácter, en una ubicación privilegiada y con una distribución moderna que permite disfrutar tanto del encanto histórico del edificio como de las comodidades actuales.

Características
Precio Venta 1.575.000 €
Año de construcción 1910
Construidos 118 m2
Precio/m² 13.347
Dormitorios 2
Baños 2
Altura/Planta 1
Estado Reformado
Ascensor
Aire acondicionado
Calificación Energética En trámite
Escalas de eficiencia



Contacto
 Sí, he leído y/o acepto las Condiciones de uso y la Política de privacidad
Inmuebles similares
Madrid, Chueca-Justicia
Piso en venta en Madrid, con 128 m2 y 2 habitaciones y 2 baños.
1.650.000 €
Ref. 3614 2 Dormitorios 2 Baños 128 m2 Superficie
Madrid, Chueca-Justicia
Piso en venta en Madrid, con 117 m2, 2 habitaciones y 2 baños, Ascensor, Amueblado y Calefacción Individual.
1.800.000 €
Ref. 3730 2 Dormitorios 2 Baños 117 m2 Superficie
Madrid, Chueca-Justicia
Piso en venta en Madrid, con 114 m2 y 2 habitaciones y 2 baños.
1.880.000 €
Ref. 3612 2 Dormitorios 2 Baños 114 m2 Superficie
Home Select
C/ Hermosilla 21, Planta Baja 28001 Madrid, España
Premier Global Brokers
Latitude One
175 SW 7th St, unit 2308-2309
Miami, Florida 33130, EE.UU
Síguenos en: