Ático en venta en Madrid (Chamartín)

venta: 1.150.000 €
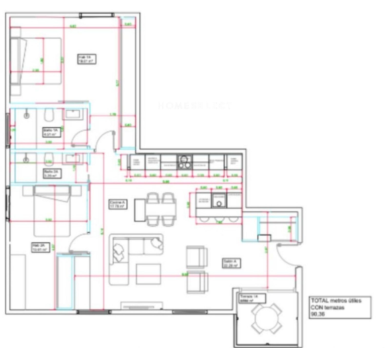
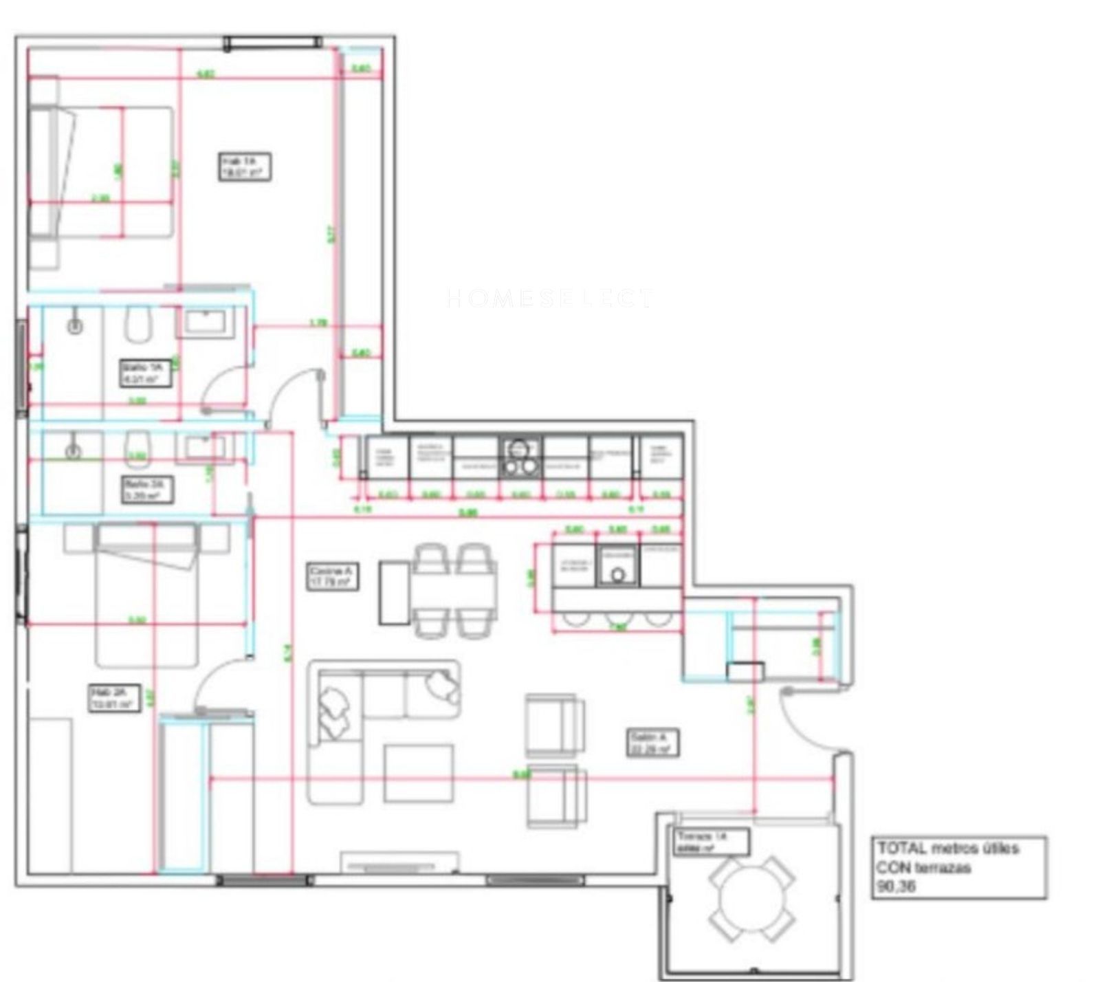
Ref.3819 2 Habitaciones 2 Baños 122 m2 Garaje 4 Altura
Descripción

En el corazón de Nueva España, uno de los barrios residenciales más cotizados y familiares de Madrid, se encuentra esta exclusiva vivienda ático, de 122 m2 construidos, luminoso y con vistas despejadas, ubicado en una finca de solo cuatro alturas con únicamente diez vecinos, lo que garantiza privacidad, tranquilidad y un ambiente privilegiado.

Actualmente en proceso de reforma integral, la vivienda se entregará completamente renovada con las más altas calidades. El diseño ha sido concebido para aprovechar al máximo la luz y el espacio, ofreciendo un salón-comedor amplio y luminoso, con cocina integrada y acceso a una agradable terraza con espacio suficiente para incorporar una mesa de comedor para cuatro comensales. Cuenta con dos dormitorios exteriores, uno de ellos con el baño en suite. El segundo baño funciona también como aseo de cortesía.

El edificio cuenta con servicio de conserjería en horario comercial y un patio ajardinado de uso común, un espacio perfecto para que los niños puedan jugar con seguridad o para disfrutar de un respiro al aire libre sin salir de casa. 

Su localización es inmejorable: rodeado de todos los servicios, colegios internacionales de prestigio, zonas verdes y una excelente comunicación con el centro de Madrid y a la vez una zona tranquila, lo que lo convierte en un hogar perfecto para quienes buscan calidad de vida, confort y exclusividad.

A pocos metros hay diversas paradas de autobús, dos de ellas, casi en la misma puerta y tres estaciones de metro por lo que tanto la seguridad de sus hijos y la comodidad para llegar a Estaciones de Tren de Chamartín y Atocha así como al Aeropuerto Madrid-Barajas están garantizados.

Características
Precio Venta 1.150.000 €
Precio/m² 9.426
Año de construcción 1974
Construidos 122 m2
Útiles 90,36 m2
Dormitorios 2
Baños 2
Terraza
Garajes 1
Altura/Planta 4
Garaje
Zonas comunes
Calificación Energética En trámite
Conserje
Escalas de eficiencia



Contacto
 Sí, he leído y/o acepto las Condiciones de uso y la Política de privacidad
Home Select
C/ Hermosilla 21, Planta Baja 28001 Madrid, España
Premier Global Brokers
Latitude One
175 SW 7th St, unit 2308-2309
Miami, Florida 33130, EE.UU
Síguenos en: