Piso en venta en Madrid (Chamberí)

venta: 882.358 €
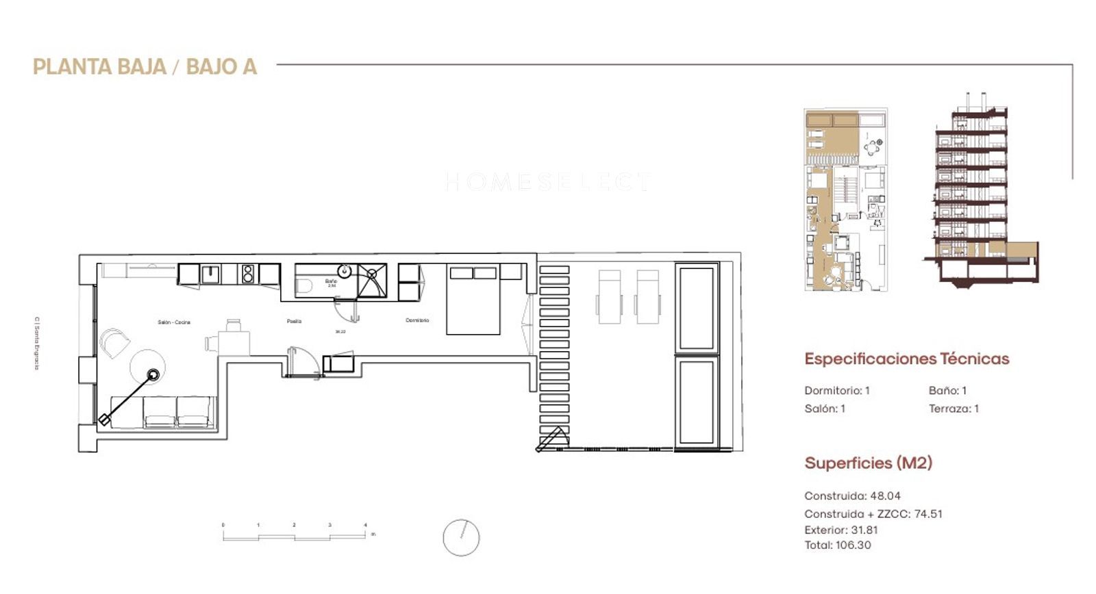
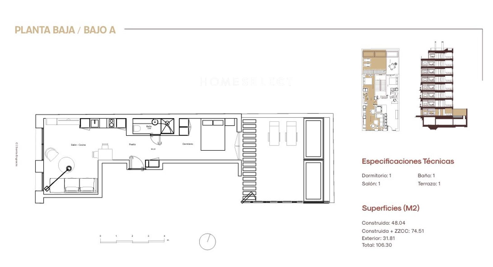
Ref.3831 1 Habitaciones 1 Baños 106 m2 Terraza
Descripción

En pleno corazón de Ríos Rosas, en la emblemática calle Santa Engracia, se levanta esta exclusiva promoción de obra nueva, un proyecto singular que combina historia, diseño contemporáneo y la más alta eficiencia energética. Actualmente quedan 4 viviendas disponibles, una oportunidad única para disfrutar de un hogar nuevo en uno de los barrios más deseados de Madrid. Ubicado en uno de los tramos más atractivos de Santa Engracia, BOHO 96 se encuentra rodeado de la vida vibrante de Chamberí: restaurantes de autor, galerías, cafés, comercios de proximidad y excelentes conexiones con toda la ciudad. Un barrio lleno de personalidad, donde tradición y modernidad conviven en armonía.

Vivienda  de 106,30 m², de los cuales 74,51 m² corresponden a superficie interior y 31,81 m² a una amplia terraza privada. Su diseño está concebido para maximizar la funcionalidad y la conexión entre interiores y exteriores, creando un espacio moderno, cómodo y muy bien aprovechado.

Al acceder al inmueble, se encuentra un amplio salón–comedor con cocina integrada, un espacio abierto y luminoso que se organiza de forma eficiente para acoger la zona de estar y el área de comedor. La cocina, completamente equipada, se dispone en línea frontal, optimizando el espacio y aportando continuidad estética al conjunto. Desde el salón se avanza a través de un pasillo central que articula la vivienda. En esta zona se ubica el baño completo, accesible tanto desde el dormitorio como desde la zona social.

La vivienda cuenta con un dormitorio amplio, con espacio para armario y acceso directo hacia la parte posterior de la vivienda, donde se encuentra uno de sus principales atractivos: la gran terraza privada de 31,81 m². Este espacio exterior, totalmente aprovechable, es perfecto para crear diferentes ambientes, como zona de comedor al aire libre, área de relax o jardín urbano.

 El edificio presenta una fachada principal que rinde homenaje a la esencia clásica de Chamberí:

Las tres primeras plantas han sido cuidadosamente rehabilitadas, conservando su perfil tradicional y su estética original. Las cuatro plantas superiores, de nueva construcción, aportan un diseño arquitectónico moderno, con líneas limpias y materiales contemporáneos que dialogan con la elegancia del entorno. El resultado es un edificio que fusiona patrimonio y vanguardia, creando un concepto residencial único en el distrito.

Todos los pisos se han concebido para ofrecer espacios luminosos, funcionales y equilibrados, con acabados premium y tecnologías de última generación orientadas al bienestar.

Memoria de calidades destacada:


Tecnología y eficiencia

  • Control centralizado del encendido y apagado de luces.
  • Persianas motorizadas con gestión integral.
  • Control centralizado de la climatización.
  • Aerotermia de alta eficiencia energética para calefacción y refrigeración mediante suelo radiante y refrescante, con termostatos independientes por zonas.
  • Producción de agua caliente sanitaria por aerotermia.
  • Toma de agua y desagüe en terrazas.


Cocinas

Equipadas con electrodomésticos de primeras marcas, incluyendo: horno, microondas, placa vitrocerámica, campana extractora, lavadora, lavavajillas y frigorífico.


Materiales y acabados

  • Suelo de tarima de roble en salones y dormitorios.
  • Baños en gres porcelánico de alta calidad.
  • Falsos techos en toda la vivienda.
  • Pintura plástica lisa en todas las estancias.
  • Suelo de piedra natural en terrazas.
Características
Precio Venta 882.358 €
Año de construcción 2025
Construidos 106 m2
Útiles 75 m2
Precio/m² 8.324
Dormitorios 1
Baños 1
Cocina Amueblada
Calefacción Aerotermia
Terraza
Ascensor
Aire acondicionado
Zonas comunes
Calificación Energética En trámite
Luz
Escalas de eficiencia



Contacto
 Sí, he leído y/o acepto las Condiciones de uso y la Política de privacidad
Inmuebles similares
Madrid, Nuevos Ministerios-Ríos Rosas
Piso en venta en Madrid, con 63 m2, 1 habitaciones y 1 baños, Ascensor, Aire acondicionado y Calefacción Aerotermia.
719.677 €
Ref. 3833 1 Dormitorios 1 Baños 63 m2 Superficie
Madrid, Nuevos Ministerios-Ríos Rosas
Piso en venta en Madrid, con 75 m2, 1 habitaciones y 1 baños, Ascensor, Aire acondicionado y Calefacción Aerotermia.
834.744 €
Ref. 3832 1 Dormitorios 1 Baños 75 m2 Superficie
Home Select
C/ Hermosilla 21, Planta Baja 28001 Madrid, España
Premier Global Brokers
Latitude One
175 SW 7th St, unit 2308-2309
Miami, Florida 33130, EE.UU
Síguenos en: