Piso en venta en Madrid (tetuan)

venta: 1.350.000 €
Ref.4053 3 Habitaciones 3 Baños 127 m2 6 Altura
Descripción

Home Select vende vivienda situada en la zona de Orense, un entorno muy bien comunicado y con una excelente oferta de servicios, comercios y restauración.

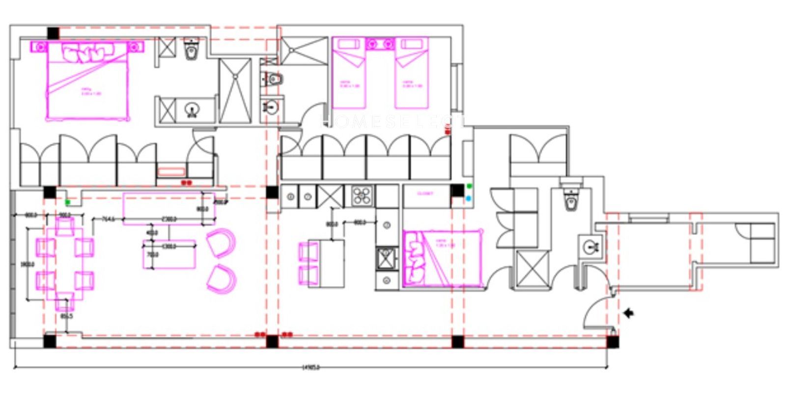
La propiedad se ubica en una sexta planta exterior, lo que garantiza una magnífica entrada de luz natural, y cuenta con 127 m² construidos. Se presenta completamente reformada y amueblada, lista para entrar a vivir, con un diseño moderno y funcional.

La zona de día se articula en torno a un amplio salón-comedor con cocina abierta, creando un espacio diáfano y acogedor ideal para el día a día y para reuniones sociales.

La vivienda dispone de cuatro dormitorios, dos de ellos con baño en suite, y un total de tres baños completos, ofreciendo una distribución cómoda tanto para familias como para quienes necesiten espacios adicionales.

Ubicada en un edificio de 1960, esta propiedad destaca por su luminosidad, su cuidada reforma y su excelente ubicación.

Características
Precio Venta 1.350.000 €
Precio/m² 10.630
Gastos de comunidad 160 €
I.B.I. 730 €
Año de construcción 1960
Construidos 127 m2
Dormitorios 3
Baños 3
Amueblado
Cocina Amueblada
Altura/Planta 6
Ascensor
Calificación Energética En trámite
Escalas de eficiencia



Contacto
 Sí, he leído y/o acepto las Condiciones de uso y la Política de privacidad
Home Select
C/ Hermosilla 21, Planta Baja 28001 Madrid, España
Premier Global Brokers
Latitude One
175 SW 7th St, unit 2308-2309
Miami, Florida 33130, EE.UU
Síguenos en: