Piso en venta en Madrid (Salamanca)

venta: 980.000 €
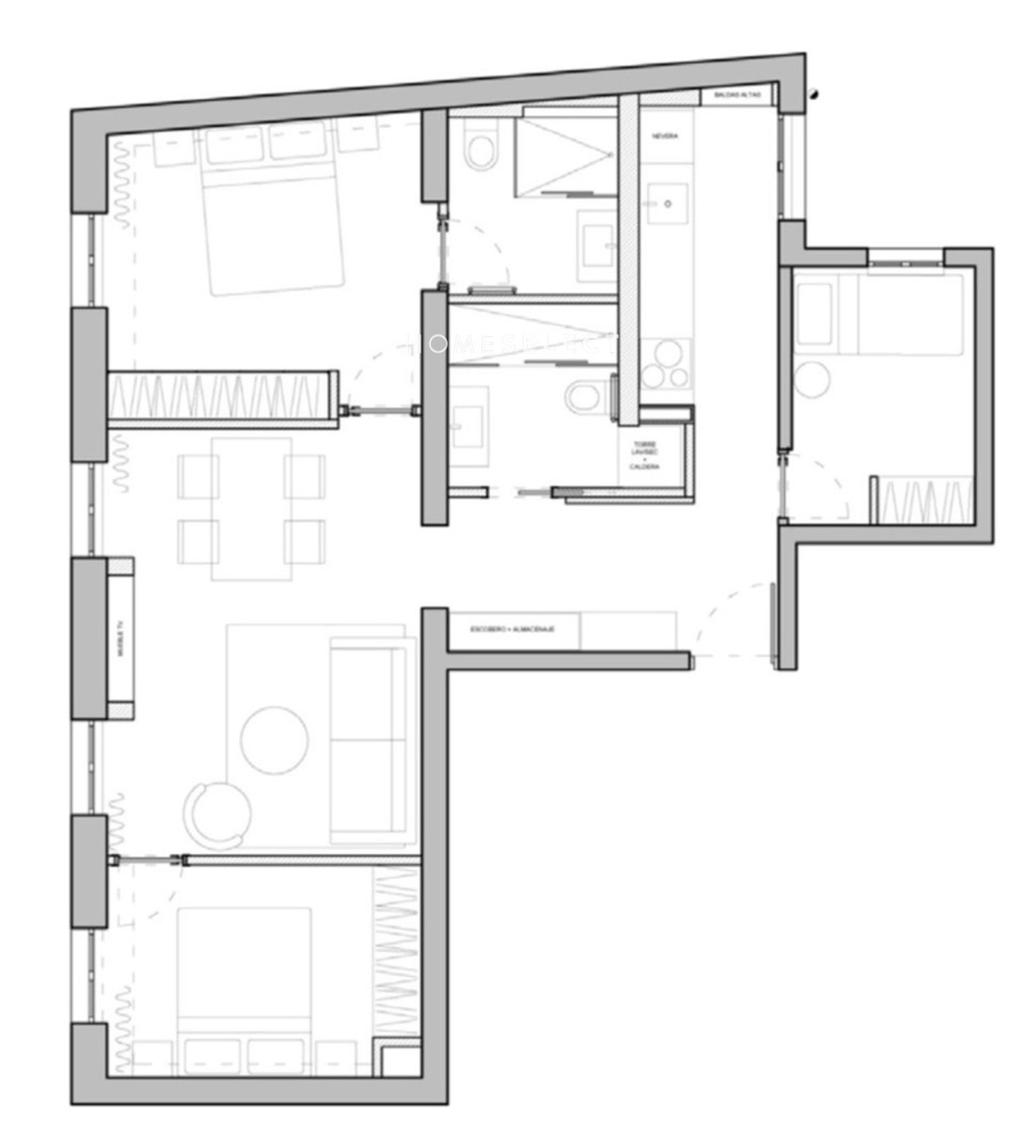
Ref.4064 3 Dormitorios 3 Baños 82 m2 5 Altura
Descripción

Home Select vende esta vivienda situada en la quinta planta exterior de un edificio en esquina con la calle Jorge Juan. La propiedad ha sido reformada y amueblada a estrenar, destacando por sus vistas despejadas y una gran luminosidad gracias a sus 4 ventanas orientadas a la calle. Los techos cuentan con una altura excepcional de 3 metros, lo que refuerza la sensación de amplitud en todas las estancias.

La zona social se distribuye en un salón comedor independiente y una cocina totalmente equipada. Al tratarse de una planta alta en esquina, el área de día disfruta de luz natural constante y una panorámica abierta de la zona.

La zona de descanso se compone de 3 habitaciones y 2 baños completos, optimizando el metraje para ofrecer una distribución funcional y moderna tras su reciente actualización integral.

La reforma finaliza en mayo.

Características
Precio Venta 980.000 €
Precio/m² 11.951
Año de construcción 1940
Construidos 82 m2
Dormitorios 3
Baños 3
Amueblado
Cocina Amueblada
Altura/Planta 5
Estado Reformado
Ascensor
Calificación Energética En trámite
Escalas de eficiencia



Contacto
 Sí, he leído y/o acepto las Condiciones de uso y la Política de privacidad
Home Select
C/ Hermosilla 21, Planta Baja 28001 Madrid, España
Premier Global Brokers
Latitude One
175 SW 7th St, unit 2308-2309
Miami, Florida 33130, EE.UU
Síguenos en: