Piso en venta en Madrid (Salamanca)

venta: 3.150.000 €
Ref.1120 3 Habitaciones 4 Baños 199 m2 4 Altura
Descripción

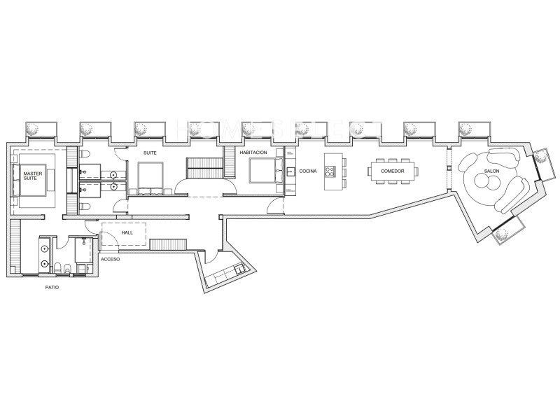
Home select vende este elegante piso en calle Alcalá, ubicado en una de las zonas más emblemáticas de Madrid. En una segunda planta de un edificio clásico de 1891 con fachada de ladrillo visto. La vivienda, con una superficie construida de 199 m², construidos en catastro ,destaca por su luminosidad y excelente orientación sureste, contando con once balcones exteriores que ofrecen luz natural durante todo el día.

Se vende completamente reformado y amueblado y se distribuye de la siguiente manera:

Al acceder a la vivienda, se encuentra un hall de entrada que da paso directo al pasillo. A la izquierda, junto al acceso, se sitúa un aseo de cortesía con doble lavabo.

Zona de día:

La zona de día consta de una cocina de gran tamaño, con isla central y espacio de almacenaje, seguida de un comedor independiente para ocho personas, que se conecta visualmente con un salón amplio y luminoso, ubicado en una esquina en chaflán con tres ventanales. Este espacio cuenta con acceso a varias ventanas que dan a fachada, proporcionando gran luminosidad.

Zona de noche:

La zona de noche se desarrolla en la primera mitad de la vivienda. Está compuesta por tres dormitorios:

Una master suite con baño privado completo.

Una segunda suite, también con baño en suite.

Un tercer dormitorio, que podría funcionar como habitación secundaria o de invitados.

Detalles adicionales

-Once balcones exteriores con vistas despejadas.

-Edificio con solo tres vecinos por planta, garantizando exclusividad y tranquilidad.

-Reforma integral con mobiliario incluido, listo para entrar a vivir.

#ref:VPIS_4473

Características
Precio Venta 3.150.000 €
Precio/m² 15.829
Construidos 199 m2
Dormitorios 3
Baños 4
Altura/Planta 4
Ascensor
Calificación Energética En trámite
Escalas de eficiencia



Contacto
 Sí, he leído y/o acepto las Condiciones de uso y la Política de privacidad
Inmuebles similares
Madrid, Recoletos
Piso en venta en Madrid, con 153 m2, 3 habitaciones y 4 baños, Garaje, Ascensor y Aire acondicionado.
2.900.000 €
Ref. 4033 3 Dormitorios 4 Baños 153 m2 Superficie
Madrid, Recoletos

Home Select vende excelente propiedad en Recoletos con terraza

3.100.000 €
Ref. 4030 3 Dormitorios 4 Baños 220 m2 Superficie
Madrid, Recoletos
Piso en venta en Madrid, con 171 m2, 3 habitaciones y 4 baños, Garaje, Ascensor, Amueblado y Aire acondicionado.
2.800.000 €
Ref. 3993 3 Dormitorios 4 Baños 171 m2 Superficie
Home Select
C/ Hermosilla 21, Planta Baja 28001 Madrid, España
Premier Global Brokers
Latitude One
175 SW 7th St, unit 2308-2309
Miami, Florida 33130, EE.UU
Síguenos en: