Piso en venta en Madrid (Centro)

venta: 1.800.000 €
Ref.1128 3 Habitaciones 4 Baños 248 m2 1 Altura
Descripción

Home Select vende vivienda para reformar en una de las zonas con más encanto del corazón de Madrid, el Barrio de las Letras. Este lugar es perfecto por su inmejorable situación, cerca de algunos de los lugares más emblemáticos de Madrid, como el Paseo del Prado y los museos de arte más famosos, el Thyssen, el Prado, CaixaForum y el Reina Sofía. Se encuentra ubicado en un edificio clásico de 1911.

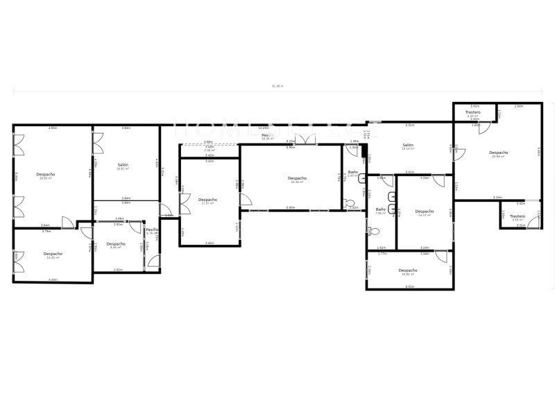
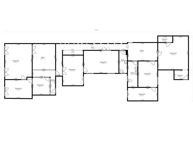
Se trata de una primera planta exterior distribuida en 248m2 con 3 balcones a la calle. Destacan sus techos de más de 3 metros de altura. La zona de noche se podría componer de 3 dormitorios en suite, el principal podría incluso disponer de un balcón.

El precio incluye un trastero de 15m2.

#ref:VPIS_4464CB

Características
Precio Venta 1.800.000 €
Precio/m² 7.258
Construidos 248 m2
Dormitorios 3
Baños 4
Altura/Planta 1
Ascensor
Calificación Energética En trámite
Escalas de eficiencia



Contacto
 Sí, he leído y/o acepto las Condiciones de uso y la Política de privacidad
Inmuebles similares
Madrid, Cortes-Huertas
Piso en venta en Madrid, con 185 m2, 4 habitaciones y 4 baños y Ascensor.
1.800.000 €
Ref. 1015 4 Dormitorios 4 Baños 185 m2 Superficie
Home Select
C/ Hermosilla 21, Planta Baja 28001 Madrid, España
Premier Global Brokers
Latitude One
175 SW 7th St, unit 2308-2309
Miami, Florida 33130, EE.UU
Síguenos en: