Piso en venta en Madrid (Argüelles)

venta: 1.250.000 €
Ref.1160 3 Habitaciones 4 Baños 130 m2 2 Altura
Descripción

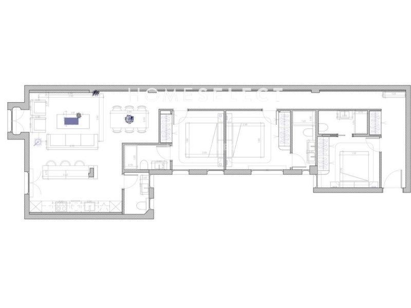
Home Select vende piso en el corazón de Moncloa - Argüelles, a escasos metros del Paseo de Pintor Rosales y del Parque del Oeste. Cuenta con una superficie construida de 130 m², ubicada en una segunda planta exterior. La ubicación es excelente, con numerosas zonas verdes, el histórico Templo de Debod a pocos pasos y una gran oferta de comercio, servicios y conexiones de transporte.

Actualmente en proceso de reforma, con finalización prevista para octubre, la vivienda se entregará completamente renovada. Al entrar, nos recibe un amplio espacio de salón comedor con cocina integrada, diseñada con una gran isla central que funciona como núcleo social de la misma. Esta zona, muy luminosa, está orientada al exterior.

La zona de noche se compone de tres dormitorios, todos ellos dobles y con armarios empotrados. Dos de los dormitorios cuentan con su propio baño en suite, mientras que los otros dos baños (uno completo y un aseo de cortesía) dan servicio al resto de la vivienda y visitas. Además, dispone de una zona de lavandería independiente .

#ref:VPIS_4422CB

Características
Precio Venta 1.250.000 €
Precio/m² 9.615
Construidos 130 m2
Dormitorios 3
Baños 4
Altura/Planta 2
Ascensor
Calificación Energética En trámite
Escalas de eficiencia



Contacto
 Sí, he leído y/o acepto las Condiciones de uso y la Política de privacidad
Home Select
C/ Hermosilla 21, Planta Baja 28001 Madrid, España
Premier Global Brokers
Latitude One
175 SW 7th St, unit 2308-2309
Miami, Florida 33130, EE.UU
Síguenos en: