Piso en venta en Madrid (Salamanca)

venta: 7.200.000 €
Ref.1228 4 Habitaciones 4 Baños 368 m2 3 Altura
Descripción

Home Select vende una magnífica propiedad situada en una de las vías más exclusivas y deseadas del Barrio de Salamanca, en el corazón de Recoletos. Se trata de una ubicación privilegiada dentro de la capital. Vivir aquí supone disfrutar del lujo y la sofisticación en uno de los entornos más elegantes de Madrid, con el privilegio adicional de encontrarse a escasos minutos a pie del parque de El Retiro, un verdadero pulmón verde ideal para desconectar sin salir del centro. La zona, además, cuenta con excelentes comunicaciones tanto por transporte público como por principales vías de acceso.

El edificio, con una arquitectura señorial de 1926, cuenta con portero físico y trastero, manteniendo el encanto clásico de las fincas representativas del barrio.

La vivienda, ubicada en una tercera planta ofrece una impresionante superficie de 368 m². Su amplitud, altura de techos y potencial luminosidad la convierten en una pieza excepcional. Se vende completamente reformada y amueblada.

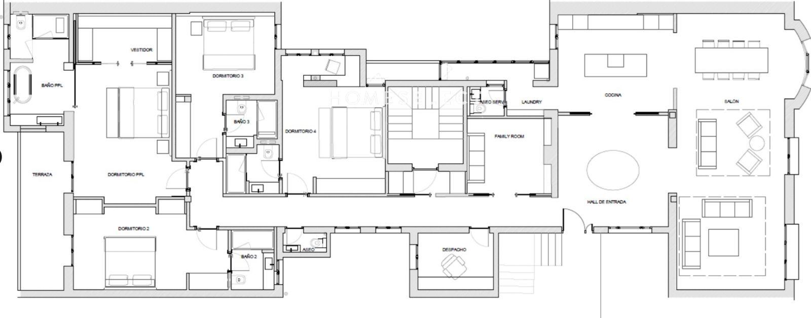
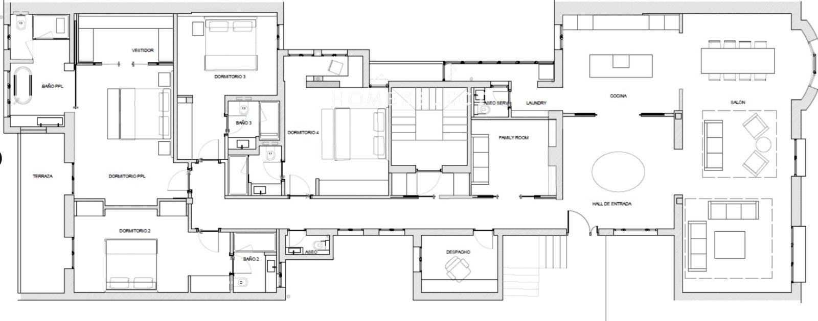
Su distribución es la siguiente:

En la zona de día: según entramos en la vivienda nos recibe un impresionante hall de entrada que nos conduce, por una lado a la zona de descanso en dos ambientes con dos grandes ventanales a la calle, y por otro lado a la cocina independiente, equipada con electrodomésticos y una isla central que comunica con un comedor para 10 comensales repleto de luz natural que entra por un gran ventanal con forma curvada. Aseo de cortesía y al lado de la cocina área de laundry.

En la zona de noche: cuatro dormitorios, todos de ellos con baños en suite. El dormitorios principal, que también cuenta con vestidor comparte acceso a una terraza con el segundo dormitorio.

Dispone de calefacción y agua caliente, lo que garantiza el confort en todo momento. Se trata de una oportunidad única para crear una vivienda personalizada en un entorno exclusivo, con el prestigio de vivir en una finca histórica de Recoletos.

#ref:VPIS_4340

Características
Precio Venta 7.200.000 €
Construidos 368 m2
Precio/m² 19.565
Dormitorios 4
Baños 4
Altura/Planta 3
Ascensor
Calificación Energética En trámite
Escalas de eficiencia



Contacto
 Sí, he leído y/o acepto las Condiciones de uso y la Política de privacidad
Inmuebles similares
Madrid, Recoletos
Piso en venta en Madrid, con 348 m2, 4 habitaciones y 4 baños, 4 plazas de Garaje, Ascensor, Amueblado, Aire acondicionado y Calefacción Aerotermia.
6.800.000 €
Ref. 3689 4 Dormitorios 4 Baños 348 m2 Superficie
Madrid, Recoletos
Piso en venta en Madrid, con 307 m2, 4 habitaciones y 5 baños, Trastero, Aire acondicionado y Calefacción Individual.
7.200.000 €
Ref. 3708 4 Dormitorios 5 Baños 307 m2 Superficie
Madrid, Recoletos
Piso en venta en Madrid, con 487 m2, 4 habitaciones y 5 baños y Garaje.
7.900.000 €
Ref. 1212 4 Dormitorios 5 Baños 487 m2 Superficie
Home Select
C/ Hermosilla 21, Planta Baja 28001 Madrid, España
Premier Global Brokers
Latitude One
175 SW 7th St, unit 2308-2309
Miami, Florida 33130, EE.UU
Síguenos en: