Fotos
Mapa
Ficha
Home Select vende un exclusivo piso para reformar en una ubicación privilegiada, a pocos pasos de El Paseo de la Castellana y en el prestigioso barrio de Almagro. Situado en un entorno tranquilo y cercano a puntos emblemáticos como la Plaza de Colón y el centro comercial ABC Serrano, este inmueble combina comodidad, estilo y una excelente localización. La vivienda se encuentra en un edificio moderno de 1958.
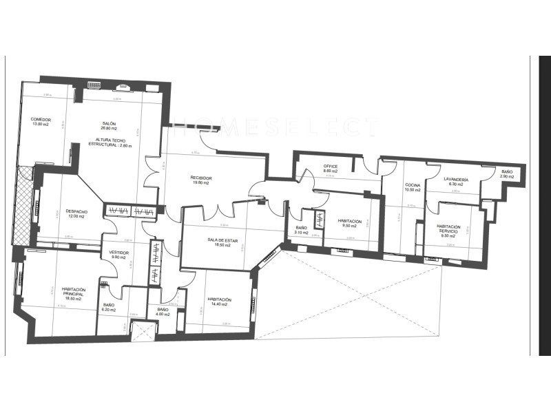
Se trata de una tercera planta exterior distribuida actualmente en 258m2 de la siguiente manera: un gran hall de entrada nos da acceso al salón, comedor y la cocina que se encuentra independiente con office. La zona de descanso se distribuye en 5 habitaciones y 4 baños.
El precio incluye trastero y plaza de parking.
#ref:VPIS_4183