Piso en venta en Madrid (Retiro)

venta: 3.800.000 €
Ref.1393 3 Habitaciones 4 Baños 232 m2 4 Altura
Descripción

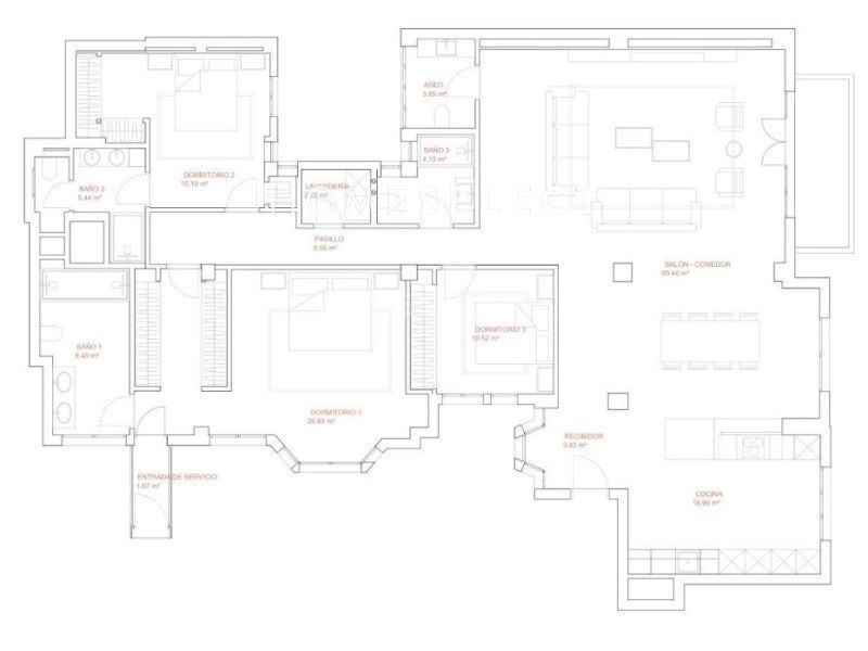
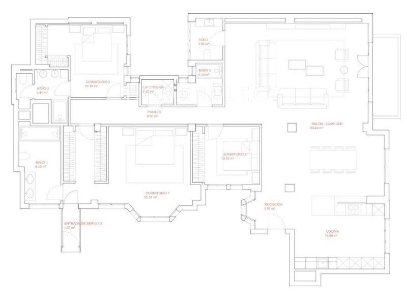
Home Select pone a la venta vivienda totalmente reformada y amueblada de aproximadamente 232 m2. esta vivienda ubicada el el prestigioso barrio del Retiro/Jerónimos. Este barrio es uno de los más emblemáticos de la ciudad de Madrid; a el pertenece el Parque del Buen Retiro, Museo del Prado y la cercanía al centro de la ciudad y los puntos de mayor interés. Jerónimos es un barrio que se caracteriza por ser un barrio residencial y tranquilo, con grandes fachadas.

La zona de día: esta integrada por un amplio salón comedor, cocina americana, aseo de cortesía y cuarto de lavado independiente. Además cuenta con una terraza y ventanas de techo a suelo lo que permite disfrutar de un espacio exterior y muy buena cantidad de luz natural.

La zona de noche: 3 dormitorios, el master de muy buen tamaño, gran cantidad de armarios y vestidor y baño en suite. El segundo dormitorio también con baño en suite y un tercer dormitorio también doble

#ref:VPIS_4153

Características
Precio Venta 3.800.000 €
Precio/m² 16.379
Construidos 232 m2
Útiles 199 m2
Dormitorios 3
Baños 4
Altura/Planta 4
Ascensor
Calificación Energética En trámite
Escalas de eficiencia



Contacto
 Sí, he leído y/o acepto las Condiciones de uso y la Política de privacidad
Home Select
C/ Hermosilla 21, Planta Baja 28001 Madrid, España
Premier Global Brokers
Latitude One
175 SW 7th St, unit 2308-2309
Miami, Florida 33130, EE.UU
Síguenos en: