Piso en venta en Madrid (Chamartín)
venta: 2.950.000 €
Ref.1403 4 Habitaciones 5 Baños 223 m2 3 m2 Altura
Descripción

Home Select vende esta elegante vivienda se encuentra en el barrio de Chamberí, en la prestigiosa zona de Trafalgar, a escasos pasos de la rotonda de Alonso Martínez y la Plaza de Santa Bárbara. Se trata de un enclave privilegiado que combina la tranquilidad residencial con la comodidad de tener a mano una amplia oferta de comercios, restaurantes y transporte público. La zona destaca por sus edificios históricos, calles arboladas y su cercanía a zonas emblemáticas de Madrid como el barrio de Justicia y el Paseo de la Castellana.

La vivienda se ubica en un edificio representativo de 1945, con una clásica fachada que conserva el carácter señorial del Chamberí más tradicional. Su portal ha sido renovado, ofreciendo una excelente entrada con ascensor. Con una superficie construida de 223 m², este inmueble ha sido completamente reformado y amueblado.

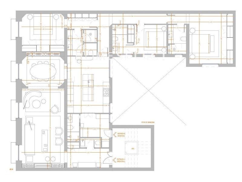
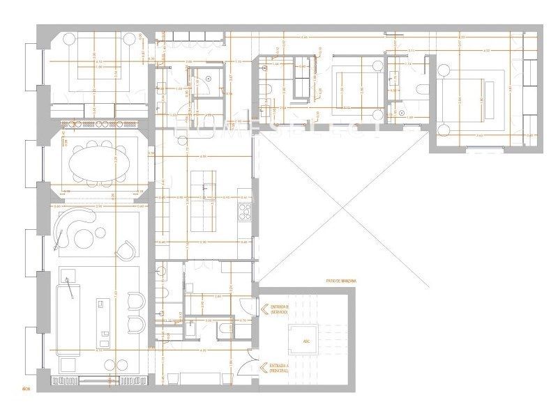
Se distribuye de la siguiente manera:

Zona de día: accediendo a la vivienda por la entrada principal, nos encontramos con un elegante recibidor que nos conduce al gran salón-comedor. Este espacio, con grandes ventanales y una cuidada iluminación, ofrece una distribución abierta que aporta amplitud y luminosidad. La zona de estar cuenta con un moderno sofá, mobiliario de diseño y una decoración equilibrada que realza la elegancia del espacio.

Junto al salón, encontramos el comedor, con capacidad para una gran mesa, ideal para recibir invitados. La conexión con la cocina es fluida, ya que esta se presenta como un espacio amplio y funcional, con una isla central y electrodomésticos de alta gama. La cocina cuenta con acceso a una entrada de servicio, proporcionando independencia a esta área.

Zona de noche: desde la cocina y el pasillo distribuidor accedemos a la zona de descanso. Aquí encontramos tres dormitorios principales, cada uno con su propio baño en suite. El dormitorio principal destaca por su amplitud y un gran baño con doble lavabo y ducha.

Además, la vivienda cuenta con un dormitorio de servicio con baño propio, ubicado estratégicamente para mantener la independencia de la zona principal.

#ref:VPIS_4141

Características
Precio Venta 2.950.000 €
Construidos 223 m2
Precio/m² 13.229
Dormitorios 4
Baños 5
Altura/Planta 3
Ascensor
Calificación Energética En trámite
Escalas de eficiencia



Contacto
 Sí, he leído y/o acepto las Condiciones de uso y la Política de privacidad
Inmuebles similares
Madrid
Piso en venta en Madrid, con 310 m2, 5 habitaciones y 5 baños, Garaje y Ascensor.
3.500.000 €
Ref. 1878 5 Dormitorios 5 Baños 310 m2 Superficie
Home Select
C/ Hermosilla 21, Planta Baja 28001 – Madrid
Premier Global Brokers
Latitude One
175 SW 7th St, unit 2308-2309
Miami, Florida 33130
Síguenos en: