Piso en venta en Madrid (Centro)
venta: 1.495.000 €
Ref.1429 3 Habitaciones 2 Baños 164 m2 2 m2 Altura
Descripción

Home Select vende vivienda reformada en la zona centro de la capital, concretamente en Palacio. Rodeada de una atmósfera vibrante y diversa como Plaza España ofrece una variedad de opciones de ocio y gastronomía. Se situa entre Gran Vía, con sus teatros y restaurantes, y la calle Princesa; un emplazamiento único, donde predominan diferentes opciones gastronómicas, cafeterías y tiendas. Además, la proximidad al Palacio Real y al Templo de Debod permite a los visitantes sumergirse en la rica historia y cultura de la capital española.

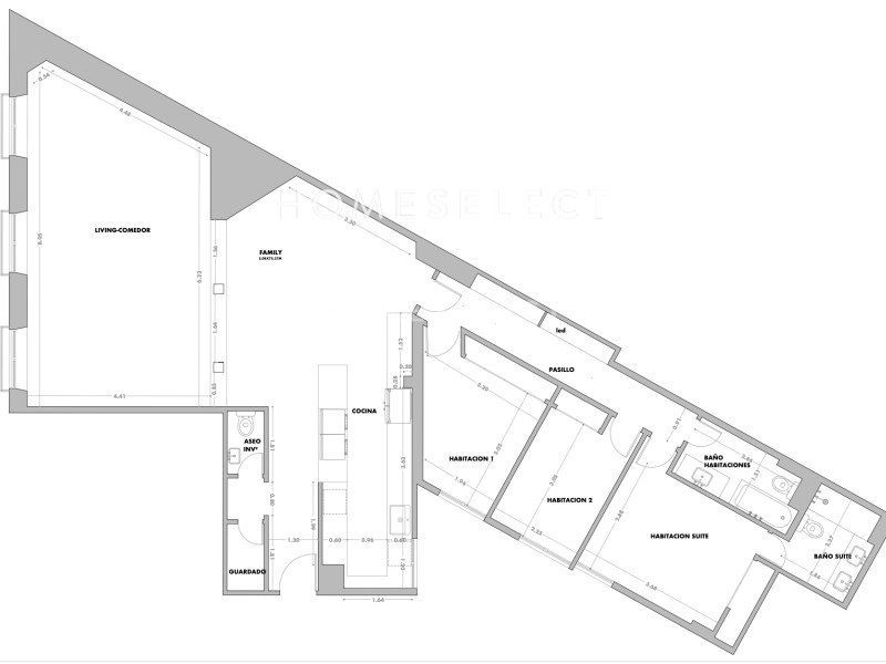
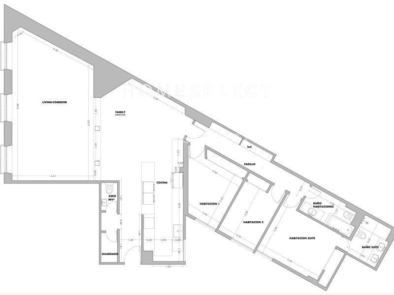
Se encuentra ubicada en una segunda planta exterior en un edificio moderno. La vivienda se distribuye en 164m2 de la siguiente manera: la zona de día está compuesta por salón - comedor y cocina semi independiente. Estancia que se inunda de luz a través de sus 3 balcones. Completa la estancia con un aseo de cortesía. La zona de noche se compone de 3 dormitorios y 2 baños, el principal con su baño en suite.

Se vende completamente reformada, amueblada y a estrenar.

#ref:VPIS_4110CB

Características
Precio Venta 1.495.000 €
Construidos 164 m2
Precio/m² 9.116
Dormitorios 3
Baños 2
Altura/Planta 2
Ascensor
Calificación Energética En trámite
Escalas de eficiencia



Contacto
 Sí, he leído y/o acepto las Condiciones de uso y la Política de privacidad
Inmuebles similares
Madrid
Piso en venta en Madrid, 3 habitaciones y 3 baños y Ascensor.
1.610.000 €
Ref. 1391 3 Dormitorios 3 Baños
Madrid
Piso en venta en Madrid, con 167 m2, 4 habitaciones y 4 baños y Ascensor.
1.395.000 €
Ref. 1384 4 Dormitorios 4 Baños 167 m2 Superficie
Madrid
Piso en venta en Madrid, con 154 m2, 3 habitaciones y 3 baños y Ascensor.
1.750.000 €
Ref. 1243 3 Dormitorios 3 Baños 154 m2 Superficie
Home Select
C/ Hermosilla 21, Planta Baja 28001 – Madrid
Premier Global Brokers
Latitude One
175 SW 7th St, unit 2308-2309
Miami, Florida 33130
Síguenos en: