Piso en venta en Madrid (Centro)

venta: 2.270.000 €
antes: 2.370.000 €
Ref.1531 4 Habitaciones 3 Baños 268 m2 1 Altura
Descripción

Home Select vende vivienda ubicada en una de las zonas más demandadas de Justicia - Chueca. Ofrece una oportunidad única de vivir en el corazón de Madrid, a tan solo 7 minutos a pie del Paseo de Recoletos y de la Gran Vía. Rodeada de una vibrante oferta de comercios, colegios, farmacias, restaurantes, museos y zonas de ocio, la ubicación garantiza una excelente calidad de vida. El edificio, de arquitectura clásica de 1920, cuenta con un portal señorial, ascensor recién instalado y zonas comunes en excelente estado.

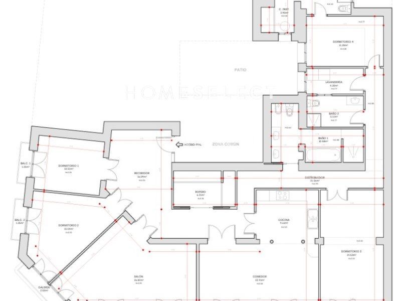
Se trata de una primera planta exterior con una superficie construida de 268m2. Destaca por sus 9 balcones a la calle, su amplitud y versatilidad. Se presenta como un auténtico lienzo en blanco, ideal para adaptarla a cualquier estilo o necesidad, ofreciendo numerosas posibilidades de redistribución.

Actualmente, nada más entrar a la vivienda un gran recibidor con un buen ropero nos dirige hacia la zona de día compuesta por una amplia zona de estar con salón y comedor en esquina, con grandes ventanales que aportan luminosidad. En la zona de noche, dormitorios espaciosos, algunos con acceso a un patio interior, asegurando tranquilidad y privacidad.

#ref:VPIS_4002

Características
Precio Venta 2.270.000 €
Precio/m² 8.470
Construidos 268 m2
Dormitorios 4
Baños 3
Altura/Planta 1
Ascensor
Calificación Energética En trámite
Escalas de eficiencia



Contacto
 Sí, he leído y/o acepto las Condiciones de uso y la Política de privacidad
Home Select
C/ Hermosilla 21, Planta Baja 28001 Madrid, España
Premier Global Brokers
Latitude One
175 SW 7th St, unit 2308-2309
Miami, Florida 33130, EE.UU
Síguenos en: