Home Select vende piso en barrio de Salamanca ubicado en la calle de Castelló en el barrio de Castellana. Ubicación privilegiada con excelente conectividad, rodeada de servicios de lujo y una vibrante oferta cultural y de ocio.
La propiedad se distingue por sus vistas despejadas hacia la iglesia de Diego de León y cuenta con garaje en la misma finca y múltiples ascensores, incluyendo un montacargas. Con solo dos vecinos por planta.
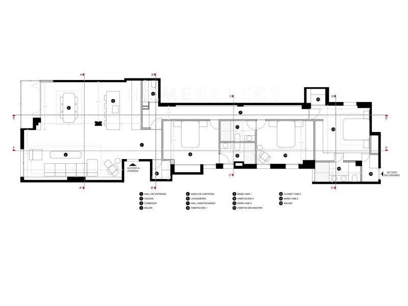
Se trata de una cuarta planta exterior, con orientación oeste y se vende en su estado actual, si bien la propiedad tiene un proyecto de reforma opcional para el futuro comprador que lo desee.
Propone una reformar con una distribución diáfana y completamente personalizable, con un acceso central que divide de manera ideal la zona social, orientada al exterior con terraza, y la zona de noche, que da a un amplio y tranquilo patio interior.
La reforma apuesta por materiales de alta calidad y un diseño que conecta el interior con el exterior mediante grandes ventanales, creando un ambiente cálido y sofisticado. Este proyecto es perfecto para quienes buscan luz, confort y exclusividad en una de las zonas más codiciadas de Madrid. El proyecto busca la sofisticación de la elegancia y el alma de la artesanía, ofreciendo un lujo que permite vivir experiencias extraordinarias en un entorno elegante y funcional.
#ref:VPIS_3890 (2)