Piso en venta en Madrid (Salamanca)

venta: 2.960.000 €
Ref.1586 4 Habitaciones 4 Baños 241 m2 3 Altura
Descripción

Home Select vende piso en la prestigiosa zona de Castellana en el Distrito de Salamanca, ofreciendo una ubicación privilegiada con fácil acceso a vías de comunicación y transporte público. Situada cerca de la embajada de Estados Unidos, esta finca clásica que data de 1920, con dos vecinos por planta, que destaca por sus señoriales zonas comunes y servicio de portería.

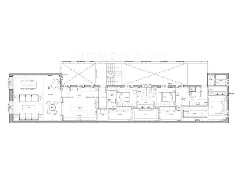
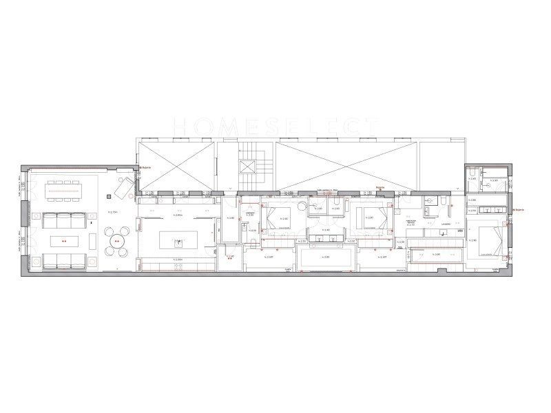
Tiene una superficie construida de 241m2, según catastro y se trata de una tercera planta exterior con conserje y doble ascensor, uno para la puerta principal y otro para la zona de servicio. Su estado actual requiere una reforma, contando con múltiples posibilidades. Su altura de techos y la ausencia de muros de carga, permite un proyecto de transformación personalizable. La propiedad cuenta con un proyecto de reforma y existe la posibilidad de poder comprarlo también reformado. La estimación del presupuesto de reforma es de 411.000€ S/IVA.

Su distribución actual es la siguiente: en la zona de día una amplia zona social muy luminosa que recibe abundante luz natural a través de sus grandes ventanales orientados al sur. La zona de noche ofrece cuatro dormitorios, cada uno con su baño en suite. Impresionan sus techos altos, de más de 3 metros de altura.

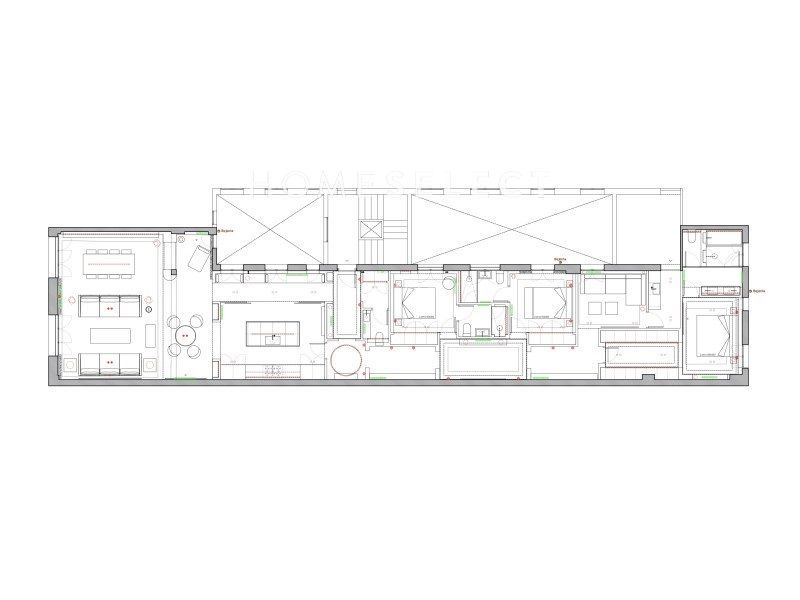
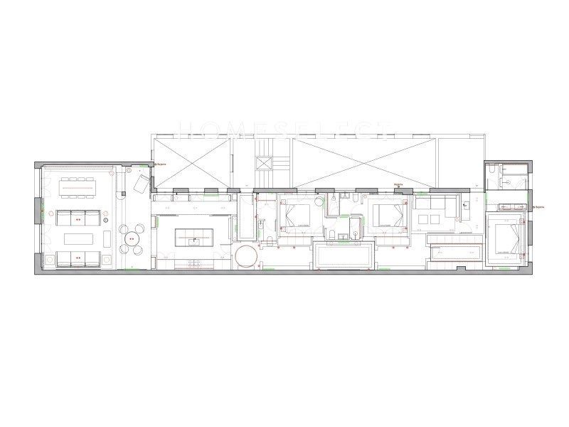
Propuesta de reforma:

La propuesta de arquitectura e interiorismo se centra en la creación de espacios que equilibran la conexión con el exterior y la privacidad interior. Los espacios diurnos están orientados hacia el exterior, ofreciendo vistas y luminosidad, mientras que las zonas nocturnas se ubican hacia el interior. La cocina, amplia y detalladamente diseñada, ofrece la flexibilidad de ser un espacio diáfano o cerrado según las necesidades. El salón-comedor incluye un acogedor rincón de lectura. El diseño de las habitaciones se organiza alrededor de un distribuidor central con una cúpula impresionante, conectando dos habitaciones secundarias que comparten un baño espacioso con áreas separadas para la ducha y el inodoro. La habitación principal destaca por su gran vestidor y un baño compartimentado con ducha y bañera. Además, la propiedad incluye un dormitorio de servicio con baño en suite y un lavadero. Los materiales y el diseño han sido cuidadosamente seleccionados para asegurar una armonía estética y funcional.

#ref:VPIS_3942

Características
Precio Venta 2.960.000 €
Precio/m² 12.282
Construidos 241 m2
Dormitorios 4
Baños 4
Calefacción Central
Altura/Planta 3
Calificación Energética En trámite
Escalas de eficiencia



Contacto
 Sí, he leído y/o acepto las Condiciones de uso y la Política de privacidad
Inmuebles similares
Madrid, Castellana

Home Select vende una vivienda super luminosa con tres huecos a la calle en Barrio Salamanca

2.790.000 €
Ref. 4050 4 Dormitorios 5 Baños 225 m2 Superficie
Madrid, Castellana
Piso en venta en Madrid, con 193 m2, 4 habitaciones y 4 baños y Ascensor.
2.850.000 €
Ref. 1151 4 Dormitorios 4 Baños 193 m2 Superficie
Madrid, Castellana
Piso en venta en Madrid, con 272 m2, 5 habitaciones y 4 baños y Ascensor.
2.800.000 €
Ref. 2429 5 Dormitorios 4 Baños 272 m2 Superficie
Home Select
C/ Hermosilla 21, Planta Baja 28001 Madrid, España
Premier Global Brokers
Latitude One
175 SW 7th St, unit 2308-2309
Miami, Florida 33130, EE.UU
Síguenos en: