Home Select vende piso de 241m2 ubicado en Barrio de Chamberí - Almagro, muy próximo al Museo Sorolla y a la Plaza de Chamberí, bordeada de bares y cafeterías. El barrio destaca por sus casas señoriales, embajadas y galerías de arte. El apartamento tiene una localización muy buena, ya que cuenta con multitud de comercios como supermercados, tiendas, restaurantes así como diferentes opciones de transporte publico. Además, se podría ir caminando prácticamente a cualquier punto de interés de la ciudad de Madrid.
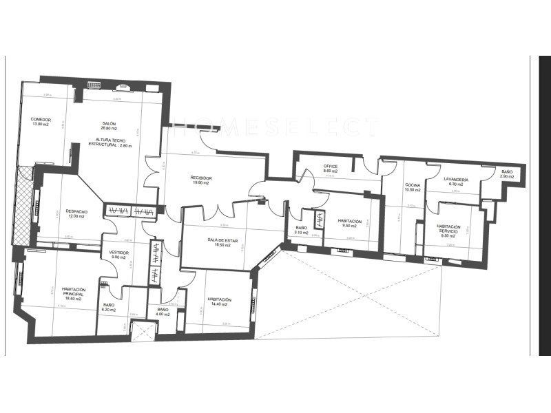
Este espacioso piso de 241 m², reformado hace ocho años y listo para una actualización, ofrece una orientación sur que asegura una excelente luminosidad natural. La vivienda incluye una plaza de garaje con espacio para dos coches y un trastero.
Al entrar, un hall de bienvenida da acceso al salón-comedor. La cocina independiente, cuenta con un área de office.
La distribución de la zona de descanso ofrece tres habitaciones, cada una con su baño en suite. La habitación principal, de orientación exterior, es amplia y luminosa, garantizando un ambiente acogedor y tranquilo. Las otras dos habitaciones están diseñadas para ofrecer privacidad y cuentan con baños completos.
Adicionalmente, la vivienda incluye una habitación y baño de servicio, que aporta funcionalidad y es ideal para apoyo doméstico.
#ref:VPIS_3797CB