Piso en venta en Madrid (Centro)

venta: 700.000 €
Ref.1732 1 Habitaciones 1 Baños 51 m2 5 Altura
Descripción

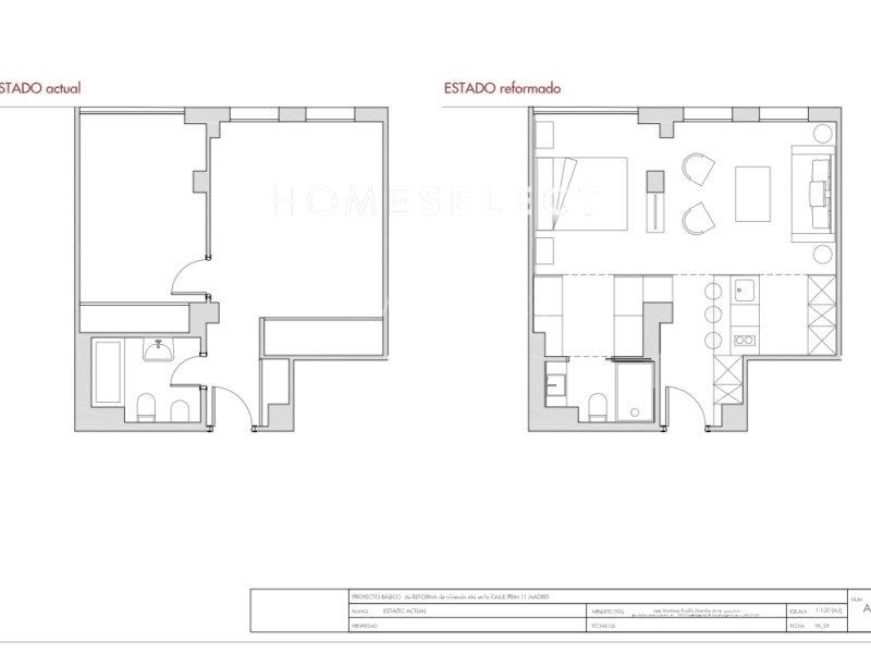
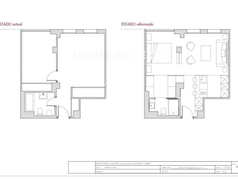
Home Select vende piso exterior para reformar en la zona de Chueca-Justicia en un edificio de 1965. Cuenta con 3 ventanas a la calle y de orientación sur. Esta área es perfecta para quienes buscan vivir en un entorno céntrico, bien comunicado y lleno de servicios. Las conexiones de transporte son excelentes, con varias estaciones de metro y autobuses que permiten moverse fácilmente por toda la ciudad. Además, Chueca-Justicia es un barrio que combina lo mejor de la vida tradicional madrileña con un estilo de vida moderno y sofisticado, lo que lo convierte en uno de los barrios más deseados para vivir.

Se entrega completamente reformado y se distribuye en salón/comedor, cocina abierta, una habitación con vestidor y baño en suite.

#ref:VPIS_3783CB

Características
Precio Venta 700.000 €
Precio/m² 13.725
Construidos 51 m2
Dormitorios 1
Baños 1
Altura/Planta 5
Calificación Energética En trámite
Escalas de eficiencia



Contacto
 Sí, he leído y/o acepto las Condiciones de uso y la Política de privacidad
Home Select
C/ Hermosilla 21, Planta Baja 28001 Madrid, España
Premier Global Brokers
Latitude One
175 SW 7th St, unit 2308-2309
Miami, Florida 33130, EE.UU
Síguenos en: