Piso en venta en Madrid (Salamanca)
venta: 9.500.000 €
Ref.1828 4 Habitaciones 5 Baños 499 m2 1 m2 Altura
Descripción

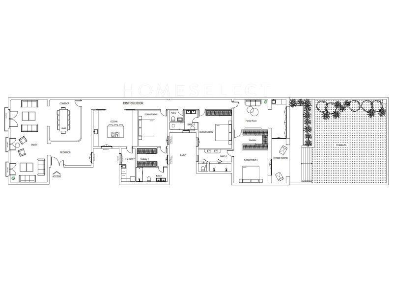
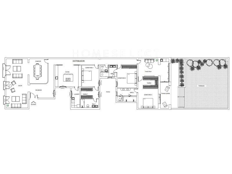
Home Select vende exclusivo piso de 449 m² en el prestigioso Barrio de Salamanca, Recoletos, ubicado en una primera planta exterior de un emblemático edificio clásico de 1912, con un portal espectacular que refleja la elegancia y distinción de la zona.

Actualmente en estado de demolición, se ofrece completamente reformado y amueblado según un proyecto de alta gama. La distribución de la reforma contempla una amplia zona social con un salón-comedor que cuenta con tres balcones a la calle y acceso a una impresionante terraza de 119 m². Además, dispone de un family room, cocina equipada con laundry y aseo de cortesía. La zona de noche incluye cuatro amplios dormitorios, cada uno con su baño en suite, garantizando la máxima comodidad y privacidad.

Una oportunidad única de vivir en una de las zonas más cotizadas de Madrid con todas las comodidades y el lujo de una vivienda moderna en un entorno histórico.

Calefacción y agua caliente central.

#ref:VPIS_3676

Características
Precio Venta 9.500.000 €
Construidos 499 m2
Precio/m² 19.038
Dormitorios 4
Baños 5
Altura/Planta 1
Ascensor
Calificación Energética En trámite
Escalas de eficiencia



Contacto
 Sí, he leído y/o acepto las Condiciones de uso y la Política de privacidad
Inmuebles similares
Madrid, Recoletos
Piso en venta en Madrid, con 487 m2, 4 habitaciones y 5 baños y Garaje.
7.900.000 €
Ref. 1212 4 Dormitorios 5 Baños 487 m2 Superficie
Home Select
C/ Hermosilla 21, Planta Baja 28001 – Madrid
Premier Global Brokers
Latitude One
175 SW 7th St, unit 2308-2309
Miami, Florida 33130
Síguenos en: