Piso en venta en Madrid (Salamanca)

venta: 1.350.000 €
antes: 1.400.000 €
Ref.3639 3 Habitaciones 2 Baños 90 m2 4 Altura
Descripción

Home Select presenta esta luminosa vivienda ubicada en la calle Padilla, en pleno Barrio de Salamanca, una de las zonas más demandadas y con mayor encanto de Madrid.


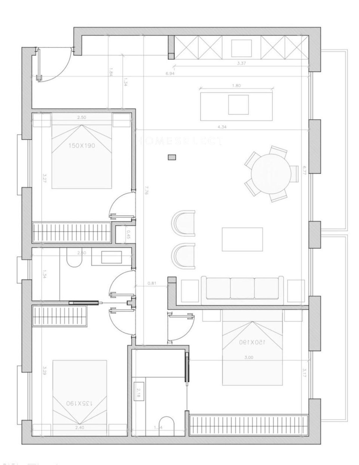
Situada en una cuarta planta exterior, esta propiedad de 90 m² destaca por su orientación sur y sus cuatro balcones a la calle, que inundan los espacios de luz natural a lo largo del día. La vivienda ha sido reformada con un estilo contemporáneo que respeta la elegancia clásica del edificio, y cuenta con techos altos de tres metros, lo que potencia la amplitud y luminosidad del conjunto.


La distribución se organiza en un amplio salón-comedor con cocina integrada y una isla central, creando una zona social muy agradable y funcional. En la zona de descanso, dispone de tres dormitorios y dos baños, siendo el dormitorio principal exterior y con baño en suite.


Una vivienda elegante y bien aprovechada, perfecta para quienes buscan disfrutar de la vida urbana en una ubicación privilegiada dentro del Barrio de Salamanca.

Características
Precio Venta 1.350.000 €
Precio/m² 15.000
Construidos 90 m2
Dormitorios 3
Baños 2
Altura/Planta 4
Calificación Energética En trámite
Escalas de eficiencia



Contacto
 Sí, he leído y/o acepto las Condiciones de uso y la Política de privacidad
María Escalada
Inmuebles similares
Madrid, Lista
Piso en venta en Madrid, con 134 m2, 3 habitaciones y 3 baños y Ascensor.
1.550.000 €
Ref. 1024 3 Dormitorios 3 Baños 134 m2 Superficie
Madrid, Lista
Piso en venta en Madrid, con 146 m2, 3 habitaciones y 3 baños y Ascensor.
1.519.000 €
Ref. 1177 3 Dormitorios 3 Baños 146 m2 Superficie
Madrid, Lista
Piso en venta en Madrid, con 135 m2, 3 habitaciones y 3 baños y Ascensor.
1.600.000 €
Ref. 1173 3 Dormitorios 3 Baños 135 m2 Superficie
Home Select
C/ Hermosilla 21, Planta Baja 28001 Madrid, España
Premier Global Brokers
Latitude One
175 SW 7th St, unit 2308-2309
Miami, Florida 33130, EE.UU
Síguenos en: