Piso en venta en Madrid (Salamanca)

venta: 2.950.000 €
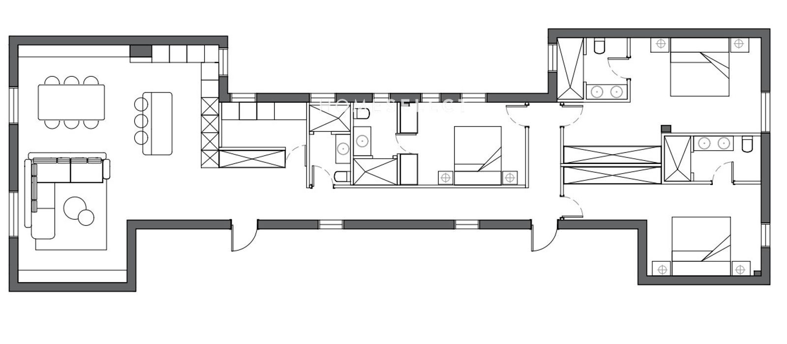
Ref.3722 3 Habitaciones 4 Baños 198 m2 7 Altura
Descripción

Home Select vende piso en Barrio de Salamanca - Castellana, cerca de la Embajada de Francia.

Se trata de una séptima planta en un edificio de 1941 que destaca por su luminosidad. Tiene una superficie construida de 198m2 y se entrega reformada y amueblada. Actualmente se encuentra en proceso de reforma y su distribución contemplará un gran salón comedor exterior con dos ventanales a la calle y cocina incorporada al mismo,con todos los electrodomésticos y una isla central con tres taburetes para comedor de diario. En la zona de noche tres dormitorios con sus baños en suite más un aseo de cortesía.  

Características
Precio Venta 2.950.000 €
Precio/m² 14.899
Construidos 198 m2
Dormitorios 3
Baños 4
Amueblado
Altura/Planta 7
Estado Reformado
Calificación Energética En trámite
Escalas de eficiencia



Contacto
 Sí, he leído y/o acepto las Condiciones de uso y la Política de privacidad
Inmuebles similares
Madrid, Castellana

Home Select vende una vivienda super luminosa con tres huecos a la calle en Barrio Salamanca

2.790.000 €
Ref. 4050 4 Dormitorios 5 Baños 225 m2 Superficie
Madrid, Castellana
Piso en venta en Madrid, con 208 m2, 3 habitaciones y 4 baños, Garaje, Trastero, Ascensor, Amueblado y Aire acondicionado.
2.920.000 €
Ref. 4026 3 Dormitorios 4 Baños 208 m2 Superficie
Madrid, Castellana
Piso en venta en Madrid, con 228 m2, 3 habitaciones y 4 baños y Amueblado.
3.150.000 €
Ref. 3901 3 Dormitorios 4 Baños 228 m2 Superficie
Home Select
C/ Hermosilla 21, Planta Baja 28001 Madrid, España
Premier Global Brokers
Latitude One
175 SW 7th St, unit 2308-2309
Miami, Florida 33130, EE.UU
Síguenos en: