Piso en venta en Madrid (Salamanca)

venta: 1.750.000 €
Ref.3849 2 Habitaciones 2 Baños 103 m2 3 Altura
Descripción

Home Select vende vivienda ubicada en Barrio de Salamanca - Castellana, una de las zonas más exclusivas y demandadas de Madrid, esta vivienda reformada de 103 m² construidos se sitúa en la tercera planta de un edificio representativo de la Calle Castelló, a escasos metros de la emblemática Plaza del Marqués de Salamanca.

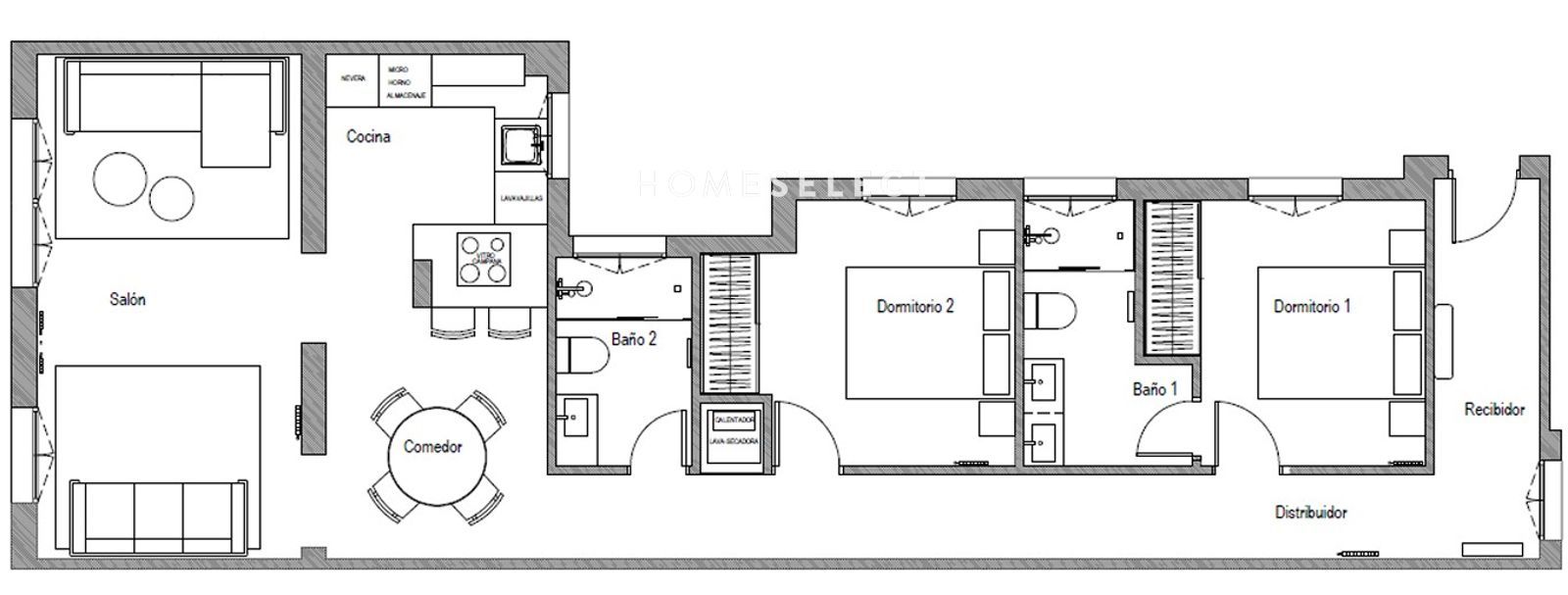
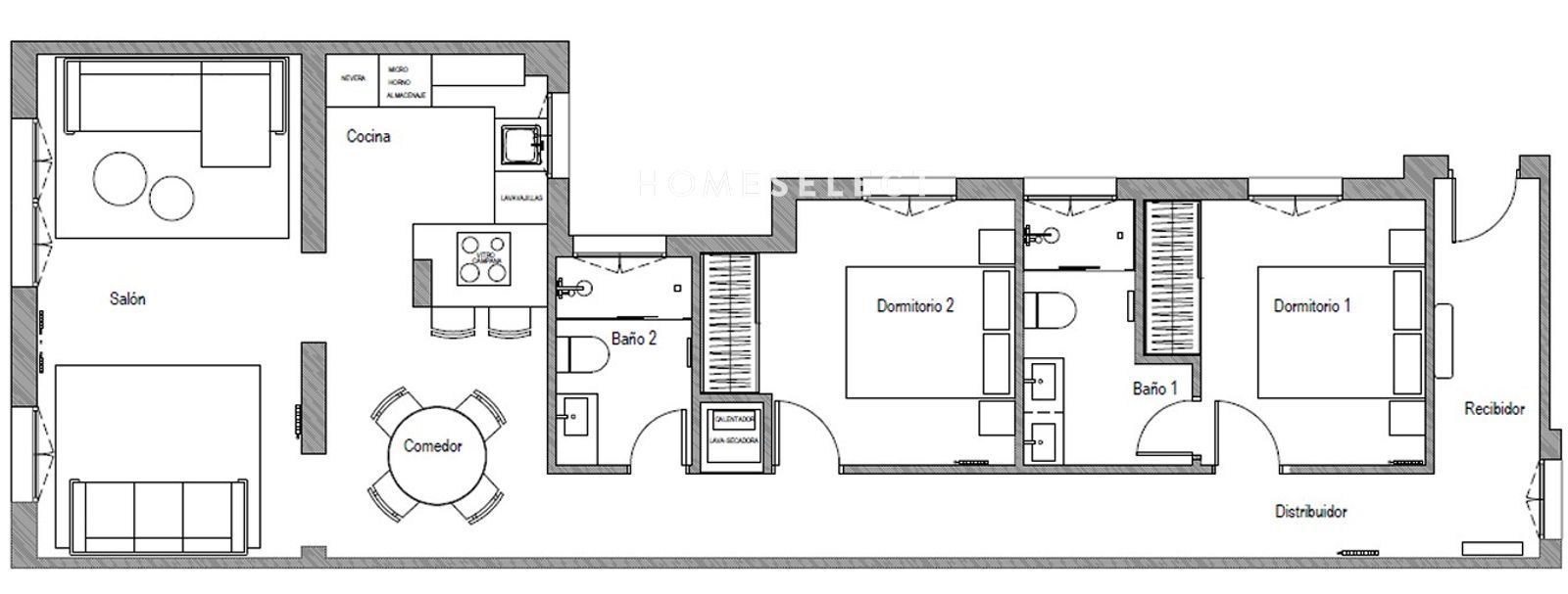
Se trata de una tercera planta en un edificio de seis alturas y se vende completamente reformada y amueblada.  Actualmente el estado de la obra se encuentra a un 65%. Tiene una superficie construida de 103m2 y se distribuye de la siguiente manera: nada más entrar en la vivienda, un recibidor que nos conduce a través de un pasillo a la zona social al fondo y a la zona de dormitorios a mano derecha.

En la zona de día: salón en dos ambientes con dos grandes ventanales, que  se relaciona con la cocina y el comedor de diario a través de una separación arquitectónica sutil, con paños de muro que estructuran el espacio sin cerrarlo, logrando un ambiente abierto pero bien organizado. La cocina tiene península y viene equipada con todos los electrodomésticos. En la zona de noche, dos dormitorios, el principal con baño en suite. El segundo dormitorio con baño completo fuera que también funciona de baño de invitados.



Características
Precio Venta 1.750.000 €
Precio/m² 16.990
Gastos de comunidad 205 €
I.B.I. 643 €
Año de construcción 1934
Construidos 103 m2
Útiles 85 m2
Dormitorios 2
Baños 2
Amueblado
Cocina Amueblada
Calefacción Central
Trastero
Altura/Planta 3
Estado Reformado
Ascensor
Aire acondicionado
Calificación Energética En trámite
Agua
Conserje
Escalas de eficiencia



Contacto
 Sí, he leído y/o acepto las Condiciones de uso y la Política de privacidad
Inmuebles similares
Madrid, Castellana
Piso en venta en Madrid, con 170 m2, 3 habitaciones y 2 baños, Garaje, Trastero y Ascensor.
1.995.000 €
Ref. 4031 3 Dormitorios 2 Baños 170 m2 Superficie
Madrid, Castellana

Home Select vende magnifica vivienda de 192 m2

1.875.000 €
Ref. 3988 3 Dormitorios 3 Baños 192 m2 Superficie
Madrid, Castellana

Home Select vende espectacular piso de 125m2 en Barrio Salamanca

1.850.000 €
Ref. 3986 2 Dormitorios 3 Baños 125 m2 Superficie
Home Select
C/ Hermosilla 21, Planta Baja 28001 Madrid, España
Premier Global Brokers
Latitude One
175 SW 7th St, unit 2308-2309
Miami, Florida 33130, EE.UU
Síguenos en: