Piso en venta en Madrid (Salamanca)

venta: 1.395.000 €
Ref.3902 2 Habitaciones 2 Baños 98 m2 2 Altura
Descripción

Home Select vende vivienda situada en una de las zonas más demandadas del Barrio de Salamanca – Castellana, a escasos pasos de la calle Velázquez y de la Milla de Oro, en una ubicación privilegiada que combina elegancia residencial, comercio de primer nivel y excelentes comunicaciones.

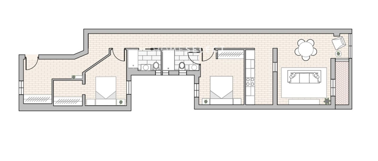
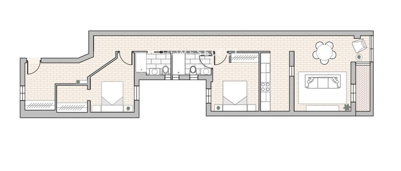
La propiedad se ubica en una segunda planta con orientación sur, lo que le proporciona una magnífica luminosidad. La zona de día se articula en torno a un amplio hall recibidor con armario gabanero, que da paso a un salón-comedor exterior, presidido por un mirador y con salida a un balcón con vistas despejadas. La cocina es independiente, espaciosa, y se encuentra totalmente equipada con electrodomésticos BOSCH.

La zona de noche se compone de dos dormitorios dobles, ambos con armarios empotrados de suelo a techo. El dormitorio principal dispone de baño en suite, ofreciendo un espacio cómodo y bien resuelto.

La vivienda ha sido objeto de una reforma integral de alta calidad, con acabados de lujo y se encuentra lista para entrar a vivir. Entre sus prestaciones destacan la calefacción individual por gas natural, aire acondicionado por conductos frío/calor con sistema Airzone, iluminación LED indirecta, solado de madera en lamas de gran formato de PORCELANOSA, sanitarios suspendidos de ROCA y revestimientos cerámicos rectificados de alta gama.

El edificio es clásico de 1928, con zonas comunes en buen estado, y cuenta con portero físico, ascensor y plataforma elevadora para personas con movilidad reducida.

Características
Precio Venta 1.395.000 €
Precio/m² 14.235
Año de construcción 1928
Construidos 98 m2
Útiles 90 m2
Dormitorios 2
Baños 2
Cocina Amueblada
Altura/Planta 2
Estado Reformado
Calificación Energética En trámite
Escalas de eficiencia



Contacto
 Sí, he leído y/o acepto las Condiciones de uso y la Política de privacidad
Inmuebles similares
Madrid, Castellana
Piso en venta en Madrid, con 143 m2, 2 habitaciones y 3 baños y Ascensor.
1.500.000 €
Ref. 1686 2 Dormitorios 3 Baños 143 m2 Superficie
Madrid, Castellana
Piso en venta en Madrid, con 135 m2, 3 habitaciones y 3 baños y Ascensor.
1.650.000 €
Ref. 1272 3 Dormitorios 3 Baños 135 m2 Superficie
Madrid, Castellana
Piso en venta en Madrid, con 128 m2, 3 habitaciones y 2 baños y Ascensor.
1.580.000 €
Ref. 1955 3 Dormitorios 2 Baños 128 m2 Superficie
Home Select
C/ Hermosilla 21, Planta Baja 28001 Madrid, España
Premier Global Brokers
Latitude One
175 SW 7th St, unit 2308-2309
Miami, Florida 33130, EE.UU
Síguenos en: