Piso en venta en Madrid (Centro)

venta: 1.335.000 €
Ref.3939 4 Habitaciones 4 Baños 179 m2 3 Altura
Descripción

Home Select vende bonita vivienda situada en pleno centro de Madrid, a escasos pasos de la Puerta del Sol y del Hotel Four Seasons, en una de las zonas más emblemáticas y vibrantes de la capital. El inmueble se ubica en un edificio representativo de 1900, con una bonita fachada clásica que conserva el carácter histórico del entorno.

La vivienda se encuentra en una tercera planta exterior, con dos balcones a la calle, dentro de un edificio de cinco alturas y un único vecino por planta, lo que garantiza privacidad y tranquilidad. Se entrega completamente reformada y amueblada, a estrenar, con una cuidada reforma que combina elegancia contemporánea y el encanto original del edificio.

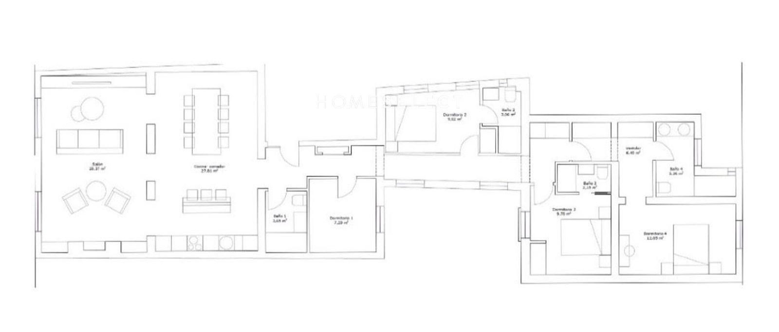
La distribución se articula en torno a un amplio salón, muy luminoso, con techos altos que aportan una agradable sensación de amplitud. La cocina integrada, equipada y abierta a un espacio de comedor, se integra de forma natural en la zona social, creando un ambiente moderno y funcional ideal tanto para el día a día como para recibir invitados.

La zona de descanso se compone de cuatro dormitorios y cuatro baños, tres de ellos en suite, ofreciendo un alto nivel de confort, privacidad y versatilidad.

Características
Precio Venta 1.335.000 €
Precio/m² 7.458
Año de construcción 1900
Construidos 179 m2
Dormitorios 4
Baños 4
Amueblado
Cocina Amueblada
Terraza
Altura/Planta 3
Estado Reformado
Ascensor
Aire acondicionado
Calificación Energética En trámite
Escalas de eficiencia



Contacto
 Sí, he leído y/o acepto las Condiciones de uso y la Política de privacidad
Home Select
C/ Hermosilla 21, Planta Baja 28001 Madrid, España
Premier Global Brokers
Latitude One
175 SW 7th St, unit 2308-2309
Miami, Florida 33130, EE.UU
Síguenos en: