Piso en venta en Madrid (Chamberí)

venta: 968.000 €
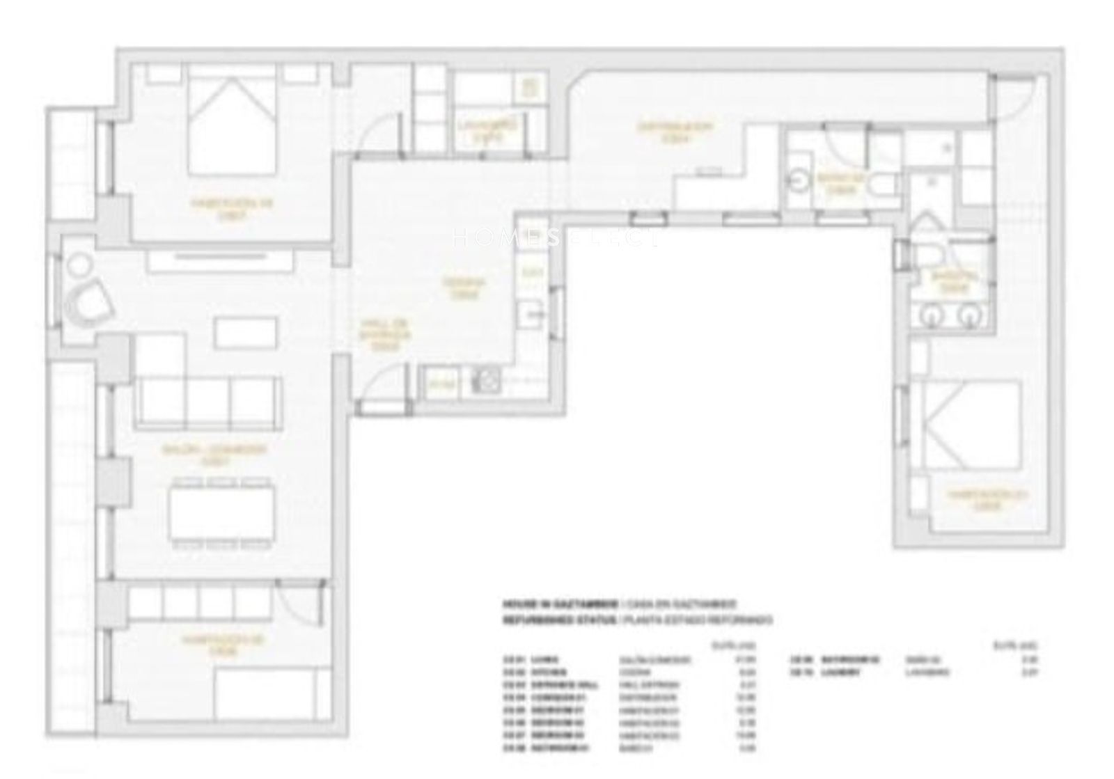
Ref.4024 3 Habitaciones 2 Baños 126 m2 1 Altura
Descripción

Home Select vende vivienda tipo dúplex situada en Chamberí, uno de los barrios más atractivos de Madrid por su ambiente residencial, su arquitectura clásica y su excelente conexión con el resto de la ciudad.

La propiedad se ubica en una primera planta exterior y cuenta con 126 m², completamente reformados, con una distribución funcional y bien aprovechada. Dispone de tres huecos a la calle, lo que aporta una agradable luminosidad a la zona de día.

La planta principal alberga un amplio salón-comedor, una cocina semi independiente que combina apertura y privacidad, así como un práctico cuarto de lavandería que añade comodidad al día a día.

La zona de descanso se compone de tres dormitorios y dos baños, uno de ellos en suite, ofreciendo un espacio confortable tanto para uso familiar como para invitados.

Una vivienda versátil y luminosa en una de las zonas más demandadas de Chamberí, ideal para quienes buscan disfrutar de un entorno urbano con carácter y todos los servicios a su alcance.

Características
Precio Venta 968.000 €
Precio/m² 7.683
Año de construcción 1950
Construidos 126 m2
Dormitorios 3
Baños 2
Cocina Amueblada
Altura/Planta 1
Estado Reformado
Ascensor
Calificación Energética En trámite
Escalas de eficiencia



Contacto
 Sí, he leído y/o acepto las Condiciones de uso y la Política de privacidad
Home Select
C/ Hermosilla 21, Planta Baja 28001 Madrid, España
Premier Global Brokers
Latitude One
175 SW 7th St, unit 2308-2309
Miami, Florida 33130, EE.UU
Síguenos en: