Piso en venta en Madrid (Chamberí)

venta: 2.250.000 €
Ref.4034 4 Habitaciones 2 Baños 188 m2 Garaje 5 Altura
Descripción

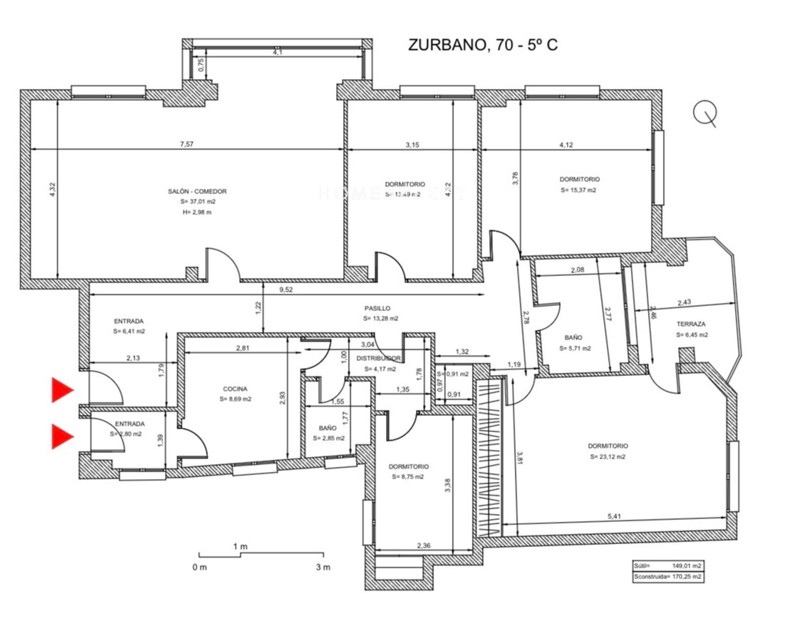
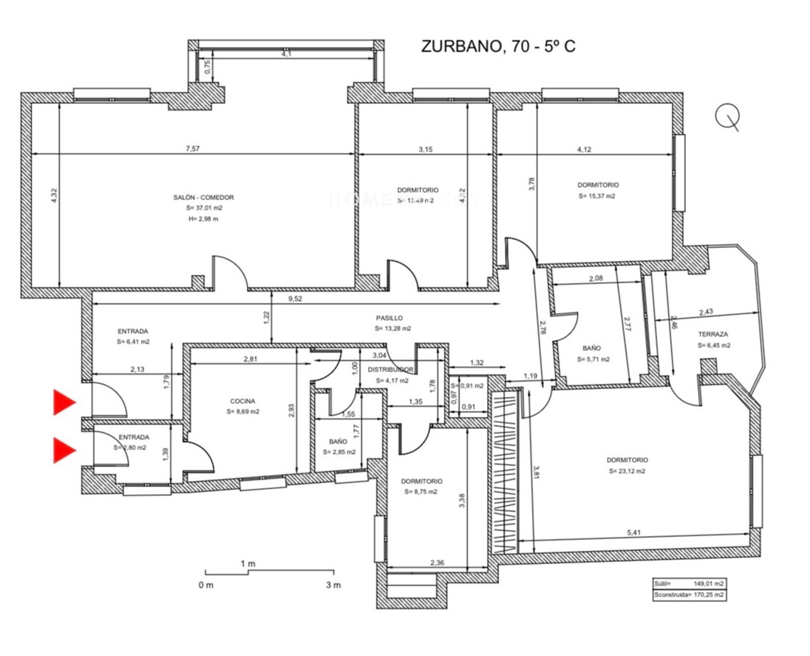
Home Select vende esta vivienda situada en la quinta planta exterior de un edificio en la calle Zurbano. La propiedad se encuentra para reformar y destaca  por contar con una terraza privada.

La zona social se distribuye actualmente en un gran hall de entrada, salón, comedor y una cocina independiente. Al ser una planta alta r, la vivienda dispone de una gran entrada de luz natural.

La zona de descanso se compone de 4 habitaciones y 2 baños completos. La amplitud del metraje y la distribución actual permiten proyectar una reforma integral para adaptar las estancias a las necesidades del comprador.

La propiedad incluye en el precio una plaza de garaje en la misma finca.

Características
Precio Venta 2.250.000 €
Precio/m² 11.968
Año de construcción 1950
Construidos 188 m2
Dormitorios 4
Baños 2
Terraza
Garajes 1
Altura/Planta 5
Estado A reformar
Ascensor
Garaje
Calificación Energética En trámite
Escalas de eficiencia



Contacto
 Sí, he leído y/o acepto las Condiciones de uso y la Política de privacidad
Alba Bermudez
Home Select
C/ Hermosilla 21, Planta Baja 28001 Madrid, España
Premier Global Brokers
Latitude One
175 SW 7th St, unit 2308-2309
Miami, Florida 33130, EE.UU
Síguenos en: