Piso en venta en Madrid (Centro)

venta: 2.490.000 €
Ref.4039 2 Habitaciones 2 Baños 173 m2 2 Altura
Descripción

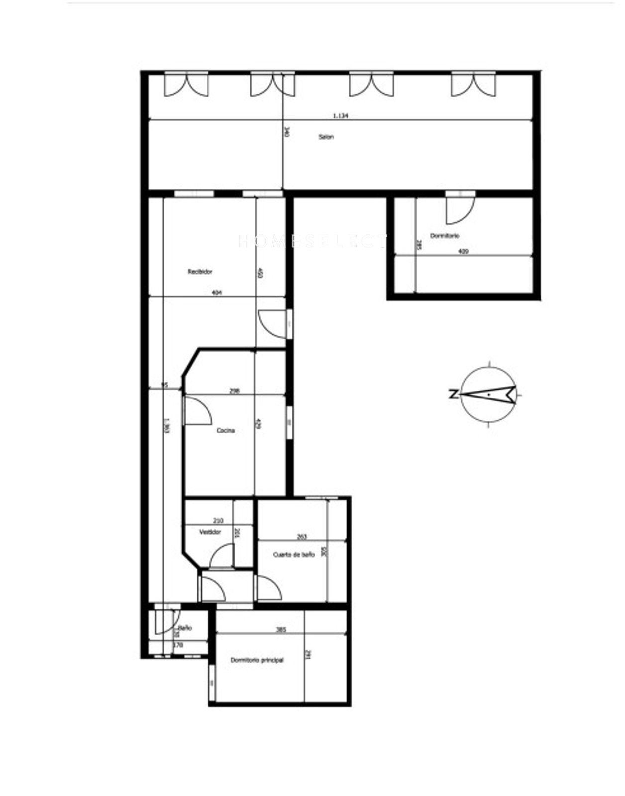
Home Select vende esta vivienda situada en una finca señorial de 1920 ubicada en el epicentro de Justicia. La propiedad se encuentra para reformar, conservando elementos de la arquitectura clásica madrileña de principios de siglo, y destaca por su luminosidad excepcional gracias a contar con 4 balcones orientados a la calle.

La zona social ofrece un gran potencial arquitectónico para proyectar un área de salón y comedor que aproveche la luz natural de los balcones exteriores. La estructura de la vivienda permite una redistribución versátil para adaptar los espacios a un estilo de vida contemporáneo.

La zona de descanso está configurada actualmente con 2 dormitorios y 2 baños. Al tratarse de una planta para reformar integralmente, el metraje permite personalizar la distribución de las habitaciones y los baños a medida del comprador.

Esta propiedad representa una oportunidad para inversores o clientes finales que busquen crear una residencia en una de las ubicaciones más cotizadas de la capital, rodeada de la oferta cultural y gastronómica del barrio.

Características
Precio Venta 2.490.000 €
Precio/m² 14.393
Año de construcción 1910
Construidos 173 m2
Dormitorios 2
Baños 2
Trastero
Terraza
Altura/Planta 2
Ascensor
Calificación Energética En trámite
Escalas de eficiencia



Contacto
 Sí, he leído y/o acepto las Condiciones de uso y la Política de privacidad
Inmuebles similares
Madrid, Justicia

Home Select vende precioso piso en Justicia con 4 balcones a la calle.

2.850.000 €
Ref. 4067 3 Dormitorios 3 Baños 204 m2 Superficie
Madrid, Justicia
Piso en venta en Madrid, con 251 m2, 4 habitaciones y 5 baños y Ascensor.
2.550.000 €
Ref. 1345 4 Dormitorios 5 Baños 251 m2 Superficie
Madrid, Justicia
Piso en venta en Madrid, con 134m2, 2 habitaciones y 2 baños,  Ascensor, Amueblado y Aire acondicionado.
2.400.000 €
Ref. 3815 2 Dormitorios 3 Baños 182 m2 Superficie
Home Select
C/ Hermosilla 21, Planta Baja 28001 Madrid, España
Premier Global Brokers
Latitude One
175 SW 7th St, unit 2308-2309
Miami, Florida 33130, EE.UU
Síguenos en: