Ático en venta en Madrid (Salamanca)

venta: 1.350.000 €
Ref.3600 106 m2 Terraza 6 Altura
Descripción

Home Select vende ático bicado en una tranquila calle del prestigioso distrito de Salamanca. Este ático representa una oportunidad única en una de las zonas más exclusivas y demandadas de Madrid. La ubicación estratégica garantiza privacidad y seguridad, rodeada de un entorno residencial consolidado, con acceso inmediato a supermercados, escuelas, transporte público y las principales vías de la ciudad. La proximidad a tiendas de lujo, restaurantes y centros culturales añade un valor incomparable, asegurando una vida urbana sofisticada y cómoda.

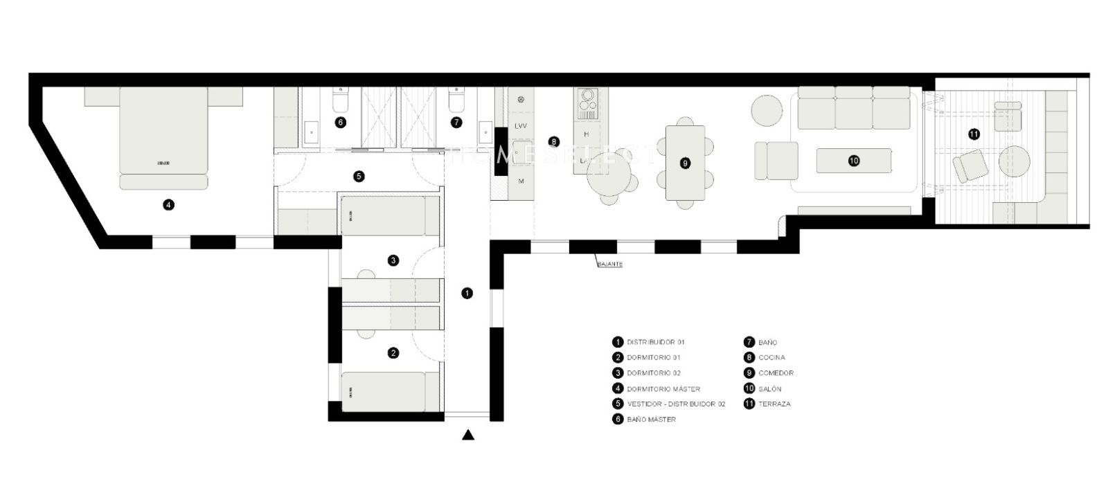
La propiedad, de aproximadamente 100 m², destaca por su distribución clásica y su terraza orientada al Este, que permite disfrutar de sol de mañana y vistas despejadas. El ático, a reformar, ofrece un lienzo perfecto para personalizar cada espacio, con techos altos y excelente iluminación natural. Los gastos de comunidad, que incluyen agua y calefacción, oscilan entre 150 y 250 €, optimizando la inversión y el confort.

La alta demanda de vivienda y alquiler en la zona, sumada al potencial de revalorización a mediano y largo plazo, convierte a este ático en una inversión segura y rentable. Su exclusividad, junto a la estabilidad del entorno, garantiza satisfacción tanto para uso residencial como para inversores que buscan rentabilidad inmediata y plusvalía futura.

La propiedad cuenta con un proyecto de reforma y la vivienda se puede vender a estrenar si el futuro comprador lo desea. Condiciones de la reforma:

Presupuesto Parametrizado (S/IVA) - Master Piece: €264,445.94€ 

Presupuesto Parametrizado (S/IVA) - Select: €197,518.53€ 

Presupuesto Parametrizado (S/IVA) - Functional: 156,632.38€ 


Presupuesto de Mobiliario S/IVA - Adicional: 15,000.00€ 

*Proyecto opcional totalmente personalizable una vez adquirida la vivienda por el nuevo propietario.

Características
Precio Venta 1.350.000 €
Precio/m² 12.736
Gastos de comunidad 200 €
I.B.I. 700 €
Año de construcción 1935
Construidos 106 m2
Útiles 98 m2
Altura/Planta 6
Estado A reformar
Aire acondicionado
Calificación Energética En trámite
Luz
Conserje
Escalas de eficiencia



Contacto
 Sí, he leído y/o acepto las Condiciones de uso y la Política de privacidad
María Escalada
Inmuebles similares
Madrid, Goya
Ático en venta en Madrid, con 90 m2, 3 habitaciones y 2 baños y Ascensor.
1.150.000 €
Ref. 3976 2 Dormitorios 2 Baños 90 m2 Superficie
Home Select
C/ Hermosilla 21, Planta Baja 28001 Madrid, España
Premier Global Brokers
Latitude One
175 SW 7th St, unit 2308-2309
Miami, Florida 33130, EE.UU
Síguenos en: